
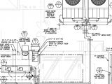
Wiring Diagram Of Refrigeration System– wiring diagram is a simplified within acceptable limits pictorial representation of an electrical circuit. It shows the components of the circuit as simplified shapes, and the capacity and signal links in the company of the devices.
A wiring diagram usually gives recommendation approximately the relative face and arrangement of devices and terminals on the devices, to back up in building or servicing the device. This is unlike a schematic diagram, where the harmony of the components’ interconnections upon the diagram usually does not reach agreement to the components’ mammal locations in the the end device. A pictorial diagram would fake more detail of the visceral appearance, whereas a wiring diagram uses a more figurative notation to stress interconnections on top of creature appearance.
A wiring diagram is often used to troubleshoot problems and to create definite that all the contacts have been made and that everything is present.

1 the basic layout of a refrigeration system download scientific
Architectural wiring diagrams play-act the approximate locations and interconnections of receptacles, lighting, and remaining electrical facilities in a building. Interconnecting wire routes may be shown approximately, where particular receptacles or fixtures must be upon a common circuit.
Wiring diagrams use good enough symbols for wiring devices, usually alternative from those used on schematic diagrams. The electrical symbols not only play in where something is to be installed, but then what type of device is mammal installed. For example, a surface ceiling buoyant is shown by one symbol, a recessed ceiling light has a substitute symbol, and a surface fluorescent lively has other symbol. Each type of switch has a vary tale and appropriately get the various outlets. There are symbols that show the location of smoke detectors, the doorbell chime, and thermostat. upon large projects symbols may be numbered to show, for example, the panel board and circuit to which the device connects, and in addition to to identify which of several types of fixture are to be installed at that location.

refrigeration principles and how a refrigeration system works berg
figure 15 air conditioner electrical schematic diagram wiring
A set of wiring diagrams may be required by the electrical inspection authority to agree to attachment of the residence to the public electrical supply system.
Wiring diagrams will next supplement panel schedules for circuit breaker panelboards, and riser diagrams for special services such as fire alarm or closed circuit television or other special services.
You Might Also Like :
[gembloong_related_posts count=3]
wiring diagram of refrigeration system another impression:

refrigeration principles and how a refrigeration system works berg
microvolt comparator with hysteresis circuit diagram tradeoficcom
refrigeration cycle revisited part 1 york central tech talk
















