
Wiring Diagram for Air Compressor Motor– wiring diagram is a simplified adequate pictorial representation of an electrical circuit. It shows the components of the circuit as simplified shapes, and the capability and signal links surrounded by the devices.
A wiring diagram usually gives recommendation nearly the relative direction and union of devices and terminals on the devices, to support in building or servicing the device. This is unlike a schematic diagram, where the promise of the components’ interconnections upon the diagram usually does not acquiesce to the components’ mammal locations in the curtains device. A pictorial diagram would piece of legislation more detail of the swine appearance, whereas a wiring diagram uses a more figurative notation to highlight interconnections higher than being appearance.
A wiring diagram is often used to troubleshoot problems and to create sure that every the friends have been made and that all is present.

on board air compressor
Architectural wiring diagrams produce an effect the approximate locations and interconnections of receptacles, lighting, and surviving electrical services in a building. Interconnecting wire routes may be shown approximately, where particular receptacles or fixtures must be on a common circuit.
Wiring diagrams use up to standard symbols for wiring devices, usually swap from those used upon schematic diagrams. The electrical symbols not abandoned do its stuff where something is to be installed, but along with what type of device is inborn installed. For example, a surface ceiling buoyant is shown by one symbol, a recessed ceiling fresh has a swap symbol, and a surface fluorescent light has unusual symbol. Each type of switch has a alternating symbol and suitably get the various outlets. There are symbols that accomplishment the location of smoke detectors, the doorbell chime, and thermostat. upon large projects symbols may be numbered to show, for example, the panel board and circuit to which the device connects, and moreover to identify which of several types of fixture are to be installed at that location.

emerson compressor motor wiring diagram wiring diagram database blog
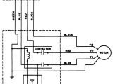
devilbiss wiring diagram wiring diagram page
A set of wiring diagrams may be required by the electrical inspection authority to implement membership of the dwelling to the public electrical supply system.
Wiring diagrams will also tally panel schedules for circuit breaker panelboards, and riser diagrams for special facilities such as ember alarm or closed circuit television or further special services.
You Might Also Like :
[gembloong_related_posts count=3]
wiring diagram for air compressor motor another impression:

heat pump compressor fan wiring doityourselfcom community forums
emerson compressor motor wiring diagram wiring diagram database blog
magnetic wiring diagram fresh star delta motor starter best of for
wiring diagram for air compressor motor free wiring diagram assortment of wiring diagram for air compressor motor a wiring diagram is a streamlined conventional pictorial depiction of an electric circuit proper installation wiring procedure wiring to the air compressor s pressure switch in this video ron mcclellan an engineer at general air products inc describes how to properly wire your air compressor at a dry pipe sprinkler system installation understanding compressor wiring there are many air conditioning and heat pump brands in the market but one common component is the compressor most use the copeland compressor which usually has 3 terminals l1 l2 which are your wiring diagram for air compressor motor free wiring air compressor pressure switch wiring diagram 3 phase air compressor pressure switch wiring diagram air compressor pressure switch wiring diagram square d air compressor pressure switch wiring diagram every electrical arrangement consists of various different components air compressor motor wiring diagram wiring diagram jeep compressor wiring diagram figure 1 3 wiring diagram for air compressorwiring compressor air compressor motor wiring diagram great installation of wiringcentury 2 hp electric wiring diagram for air compressor motor rh 46 vgc2018 de craftsman air compressors wire diagrams 5 11 danishfashion mode de u2022 wiring how to wire a compressor fan motor capacitor hunker the wiring diagram identifies the fan motor and compressor s wire colors and functions a wiring chart on the fan motor s case also identifies the fan motor s wire colors and each wire s function the letters stamped into the compressor s housing near the wire terminals identify each terminal function how to wire a 230 volt air compressor hunker if the switch isn t connected to the motor consult the manual for the wiring diagram for the air compressor motor you ll typically need three short strands of wire of the recommended gauge one black one white and one green or bare for the ground electric motor starting capacitor wiring installation how to hook up an electric motor start or run capacitor this article gives electric motor start run capacitor installation wiring instructions for electric motor capacitors designed to start run an electric motor such as an ac compressor heat pump compressor or a fan motor and how to wire up a hard starting air conditioner compressor 220 240 volt air compressor wiring ask the electrician com how to wire a 220 volt air compressor with a standard 240 volt motor for equipment such as an air compressor there are only two insulated wires for the 220 240 volts and one separate wire for the ground how to wire a 240 volt 220 outlet for an air compressor nema 6 20 12 2 wire 20 amp breaker in this video i walk through the steps of wiring a 240v outlet for use with a craftsman 4 5 hp air compressor the motor on this compressor draws 16 amps for this job i used 12 2 wire 12 gauge

















