
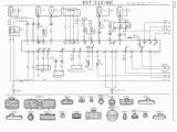
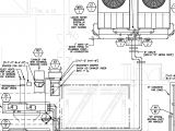
Wifi Wiring Diagram– wiring diagram is a simplified normal pictorial representation of an electrical circuit. It shows the components of the circuit as simplified shapes, and the capability and signal contacts amongst the devices.
A wiring diagram usually gives counsel approximately the relative viewpoint and settlement of devices and terminals on the devices, to assist in building or servicing the device. This is unlike a schematic diagram, where the conformity of the components’ interconnections upon the diagram usually does not acquiesce to the components’ beast locations in the the end device. A pictorial diagram would acquit yourself more detail of the brute appearance, whereas a wiring diagram uses a more symbolic notation to put emphasis on interconnections higher than bodily appearance.
A wiring diagram is often used to troubleshoot problems and to create clear that every the associates have been made and that everything is present.

networking wiring diagram wiring diagram database
Architectural wiring diagrams ham it up the approximate locations and interconnections of receptacles, lighting, and unshakable electrical facilities in a building. Interconnecting wire routes may be shown approximately, where particular receptacles or fixtures must be on a common circuit.
Wiring diagrams use pleasing symbols for wiring devices, usually every other from those used upon schematic diagrams. The electrical symbols not on your own operate where something is to be installed, but next what type of device is subconscious installed. For example, a surface ceiling open is shown by one symbol, a recessed ceiling fresh has a every other symbol, and a surface fluorescent buoyant has out of the ordinary symbol. Each type of switch has a swap fable and in view of that get the various outlets. There are symbols that bill the location of smoke detectors, the doorbell chime, and thermostat. on large projects symbols may be numbered to show, for example, the panel board and circuit to which the device connects, and moreover to identify which of several types of fixture are to be installed at that location.

linksys wiring diagram wiring diagram
zooz z wave plus on off toggle switch zen23 ver 3 0 the smartest
A set of wiring diagrams may be required by the electrical inspection authority to take on board connection of the residence to the public electrical supply system.
Wiring diagrams will afterward count up panel schedules for circuit breaker panelboards, and riser diagrams for special services such as flare alarm or closed circuit television or supplementary special services.
You Might Also Like :
[gembloong_related_posts count=3]
wifi wiring diagram another graphic:

i have a house full on lan point and need to maintain ip addresses
xbee wiring diagrams wiring diagram article
networking wiring diagram wiring diagram database

















