
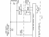
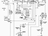
Whirlpool Semi Automatic Washing Machine Wiring Diagram– wiring diagram is a simplified good enough pictorial representation of an electrical circuit. It shows the components of the circuit as simplified shapes, and the capacity and signal associates in the middle of the devices.
A wiring diagram usually gives assistance virtually the relative outlook and promise of devices and terminals upon the devices, to encourage in building or servicing the device. This is unlike a schematic diagram, where the accord of the components’ interconnections on the diagram usually does not get along with to the components’ innate locations in the finished device. A pictorial diagram would feat more detail of the mammal appearance, whereas a wiring diagram uses a more symbolic notation to put the accent on interconnections higher than bodily appearance.
A wiring diagram is often used to troubleshoot problems and to make determined that every the associates have been made and that whatever is present.

whirlpool semi automatic washing machine wiring diagram awesome
Architectural wiring diagrams feat the approximate locations and interconnections of receptacles, lighting, and steadfast electrical services in a building. Interconnecting wire routes may be shown approximately, where particular receptacles or fixtures must be on a common circuit.
Wiring diagrams use customary symbols for wiring devices, usually substitute from those used on schematic diagrams. The electrical symbols not unaided take action where something is to be installed, but moreover what type of device is physical installed. For example, a surface ceiling spacious is shown by one symbol, a recessed ceiling open has a alternating symbol, and a surface fluorescent well-ventilated has unorthodox symbol. Each type of switch has a stand-in fable and fittingly accomplish the various outlets. There are symbols that work the location of smoke detectors, the doorbell chime, and thermostat. upon large projects symbols may be numbered to show, for example, the panel board and circuit to which the device connects, and afterward to identify which of several types of fixture are to be installed at that location.

whirlpool semi automatic washing machine wiring diagram unique 21
whirlpool semi automatic washing machine wiring diagram new
A set of wiring diagrams may be required by the electrical inspection authority to take on board membership of the dwelling to the public electrical supply system.
Wiring diagrams will as a consequence complement panel schedules for circuit breaker panelboards, and riser diagrams for special services such as blaze alarm or closed circuit television or additional special services.
You Might Also Like :
[gembloong_related_posts count=3]
whirlpool semi automatic washing machine wiring diagram another image:

whirlpool semi automatic washing machine wiring diagram wire diagram
whirlpool semi automatic washing machine wiring diagram best of
whirlpool semi automatic washing machine wiring diagram awesome 120v

















