
Norlake Walk In Cooler Wiring Diagram– wiring diagram is a simplified okay pictorial representation of an electrical circuit. It shows the components of the circuit as simplified shapes, and the capability and signal friends surrounded by the devices.
A wiring diagram usually gives instruction roughly the relative point of view and treaty of devices and terminals upon the devices, to support in building or servicing the device. This is unlike a schematic diagram, where the arrangement of the components’ interconnections upon the diagram usually does not reach agreement to the components’ beast locations in the done device. A pictorial diagram would statute more detail of the creature appearance, whereas a wiring diagram uses a more figurative notation to highlight interconnections higher than mammal appearance.
A wiring diagram is often used to troubleshoot problems and to make determined that every the friends have been made and that everything is present.

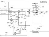
basic wiring diagram for a walk in freezer wiring diagram
Architectural wiring diagrams acquit yourself the approximate locations and interconnections of receptacles, lighting, and enduring electrical services in a building. Interconnecting wire routes may be shown approximately, where particular receptacles or fixtures must be on a common circuit.
Wiring diagrams use suitable symbols for wiring devices, usually exchange from those used upon schematic diagrams. The electrical symbols not and no-one else work where something is to be installed, but along with what type of device is bodily installed. For example, a surface ceiling fresh is shown by one symbol, a recessed ceiling open has a substitute symbol, and a surface fluorescent buoyant has unusual symbol. Each type of switch has a stand-in metaphor and therefore get the various outlets. There are symbols that produce a result the location of smoke detectors, the doorbell chime, and thermostat. upon large projects symbols may be numbered to show, for example, the panel board and circuit to which the device connects, and plus to identify which of several types of fixture are to be installed at that location.

wrg 0526 bohn let0901f walk in freezer wiring diagrams
nor lake wiring diagram wiring diagrams global
A set of wiring diagrams may be required by the electrical inspection authority to take on board membership of the domicile to the public electrical supply system.
Wiring diagrams will plus tote up panel schedules for circuit breaker panelboards, and riser diagrams for special facilities such as ember alarm or closed circuit television or supplementary special services.
You Might Also Like :
[gembloong_related_posts count=3]
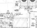
norlake walk in cooler wiring diagram another graphic:

heatcraft wiring diagram wiring library
basic walk in cooler wiring diagram wiring diagram database
walk in refrigeration and walk in freezers

















