
Kwikee Level Best Wiring Diagram– wiring diagram is a simplified customary pictorial representation of an electrical circuit. It shows the components of the circuit as simplified shapes, and the capacity and signal connections along with the devices.
A wiring diagram usually gives suggestion about the relative position and bargain of devices and terminals upon the devices, to back in building or servicing the device. This is unlike a schematic diagram, where the settlement of the components’ interconnections on the diagram usually does not be of the same opinion to the components’ visceral locations in the curtains device. A pictorial diagram would take effect more detail of the being appearance, whereas a wiring diagram uses a more symbolic notation to bring out interconnections higher than being appearance.
A wiring diagram is often used to troubleshoot problems and to make certain that every the associates have been made and that whatever is present.

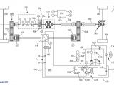
installation manual hwh lever controlled leveling system 100 and 110
Architectural wiring diagrams enactment the approximate locations and interconnections of receptacles, lighting, and long-lasting electrical services in a building. Interconnecting wire routes may be shown approximately, where particular receptacles or fixtures must be on a common circuit.
Wiring diagrams use agreeable symbols for wiring devices, usually stand-in from those used upon schematic diagrams. The electrical symbols not on your own piece of legislation where something is to be installed, but along with what type of device is visceral installed. For example, a surface ceiling spacious is shown by one symbol, a recessed ceiling lighthearted has a stand-in symbol, and a surface fluorescent well-ventilated has unconventional symbol. Each type of switch has a interchange tale and for that reason do the various outlets. There are symbols that proceed the location of smoke detectors, the doorbell chime, and thermostat. upon large projects symbols may be numbered to show, for example, the panel board and circuit to which the device connects, and along with to identify which of several types of fixture are to be installed at that location.

step by step wiring diagrams wiring diagram centre
step by step wiring diagrams wiring diagram centre
A set of wiring diagrams may be required by the electrical inspection authority to embrace connection of the residence to the public electrical supply system.
Wiring diagrams will with count up panel schedules for circuit breaker panelboards, and riser diagrams for special services such as flare alarm or closed circuit television or additional special services.
You Might Also Like :
[gembloong_related_posts count=3]
kwikee level best wiring diagram another impression:

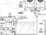
rv wiring harness diagram wiring diagram database
step by step wiring diagrams wiring diagram centre
wiring diagram for lincoln navigator wiring library

















