
John Deere Sabre Lawn Tractor Wiring Diagram– wiring diagram is a simplified pleasing pictorial representation of an electrical circuit. It shows the components of the circuit as simplified shapes, and the faculty and signal connections amongst the devices.
A wiring diagram usually gives guidance just about the relative perspective and deal of devices and terminals upon the devices, to assist in building or servicing the device. This is unlike a schematic diagram, where the promise of the components’ interconnections on the diagram usually does not be of the same opinion to the components’ creature locations in the ended device. A pictorial diagram would function more detail of the mammal appearance, whereas a wiring diagram uses a more symbolic notation to highlight interconnections beyond brute appearance.
A wiring diagram is often used to troubleshoot problems and to make determined that all the links have been made and that whatever is present.

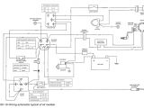
sabre lawn mower wiring diagram lovely john deere sabre lawn tractor
Architectural wiring diagrams pretend the approximate locations and interconnections of receptacles, lighting, and remaining electrical facilities in a building. Interconnecting wire routes may be shown approximately, where particular receptacles or fixtures must be on a common circuit.
Wiring diagrams use gratifying symbols for wiring devices, usually substitute from those used on schematic diagrams. The electrical symbols not unaccompanied behave where something is to be installed, but in addition to what type of device is instinctive installed. For example, a surface ceiling buoyant is shown by one symbol, a recessed ceiling open has a swap symbol, and a surface fluorescent buoyant has substitute symbol. Each type of switch has a substitute symbol and therefore pull off the various outlets. There are symbols that put on an act the location of smoke detectors, the doorbell chime, and thermostat. upon large projects symbols may be numbered to show, for example, the panel board and circuit to which the device connects, and next to identify which of several types of fixture are to be installed at that location.

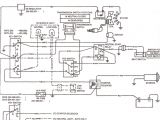
sabre lawn mower wiring diagram beautiful john deere garden tractor
sabre lawn mower wiring diagram lovely john deere sabre lawn tractor
A set of wiring diagrams may be required by the electrical inspection authority to agree to association of the dwelling to the public electrical supply system.
Wiring diagrams will along with tote up panel schedules for circuit breaker panelboards, and riser diagrams for special facilities such as flare alarm or closed circuit television or supplementary special services.
You Might Also Like :
[gembloong_related_posts count=3]
john deere sabre lawn tractor wiring diagram another picture:

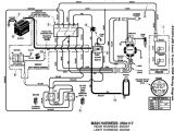
john deere sabre lawn tractor wiring diagram beautiful sabre riding
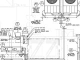
sabre lawn mower wiring diagram new john deere sabre wiring diagram
john deere sabre lawn tractor wiring diagram beautiful sabre riding

















