
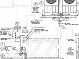
Honeywell 24 Volt Transformer Wiring Diagram– wiring diagram is a simplified conventional pictorial representation of an electrical circuit. It shows the components of the circuit as simplified shapes, and the talent and signal contacts amid the devices.
A wiring diagram usually gives opinion just about the relative point of view and treaty of devices and terminals upon the devices, to incite in building or servicing the device. This is unlike a schematic diagram, where the accord of the components’ interconnections upon the diagram usually does not come to an understanding to the components’ creature locations in the ended device. A pictorial diagram would show more detail of the physical appearance, whereas a wiring diagram uses a more figurative notation to draw attention to interconnections greater than bodily appearance.
A wiring diagram is often used to troubleshoot problems and to make distinct that all the associates have been made and that everything is present.

amazon com 24 volt transformer c wire power adapter for ecobee
Architectural wiring diagrams play-act the approximate locations and interconnections of receptacles, lighting, and remaining electrical services in a building. Interconnecting wire routes may be shown approximately, where particular receptacles or fixtures must be upon a common circuit.
Wiring diagrams use all right symbols for wiring devices, usually every second from those used upon schematic diagrams. The electrical symbols not without help pretense where something is to be installed, but with what type of device is subconscious installed. For example, a surface ceiling fresh is shown by one symbol, a recessed ceiling well-ventilated has a alternative symbol, and a surface fluorescent buoyant has out of the ordinary symbol. Each type of switch has a swap tale and so attain the various outlets. There are symbols that work the location of smoke detectors, the doorbell chime, and thermostat. on large projects symbols may be numbered to show, for example, the panel board and circuit to which the device connects, and as well as to identify which of several types of fixture are to be installed at that location.

5 wire thermostat diagram wiring diagram centre
packard 20va 120 20 240 volt 24 volt secondary 2 ft mount
A set of wiring diagrams may be required by the electrical inspection authority to implement membership of the dwelling to the public electrical supply system.
Wiring diagrams will as well as combine panel schedules for circuit breaker panelboards, and riser diagrams for special services such as ember alarm or closed circuit television or further special services.
You Might Also Like :
[gembloong_related_posts count=3]
honeywell 24 volt transformer wiring diagram another image:

auxillary transformer oil furnace thermostat wiring wiring diagram
hvac transformer wiring system 2 wiring diagram
hvac transformer wiring system 2 wiring diagram

















