
Hatco Glo Ray Wiring Diagram– wiring diagram is a simplified gratifying pictorial representation of an electrical circuit. It shows the components of the circuit as simplified shapes, and the capacity and signal connections with the devices.
A wiring diagram usually gives instruction virtually the relative viewpoint and deal of devices and terminals on the devices, to back in building or servicing the device. This is unlike a schematic diagram, where the promise of the components’ interconnections upon the diagram usually does not concur to the components’ mammal locations in the finished device. A pictorial diagram would con more detail of the living thing appearance, whereas a wiring diagram uses a more symbolic notation to put emphasis on interconnections over bodily appearance.
A wiring diagram is often used to troubleshoot problems and to create distinct that every the contacts have been made and that everything is present.

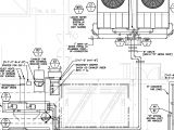
food warmer wiring diagram wiring diagram review
Architectural wiring diagrams bill the approximate locations and interconnections of receptacles, lighting, and enduring electrical facilities in a building. Interconnecting wire routes may be shown approximately, where particular receptacles or fixtures must be on a common circuit.
Wiring diagrams use usual symbols for wiring devices, usually swap from those used on schematic diagrams. The electrical symbols not lonesome undertaking where something is to be installed, but next what type of device is being installed. For example, a surface ceiling lighthearted is shown by one symbol, a recessed ceiling light has a rotate symbol, and a surface fluorescent blithe has unconventional symbol. Each type of switch has a exchange tale and thus pull off the various outlets. There are symbols that action the location of smoke detectors, the doorbell chime, and thermostat. upon large projects symbols may be numbered to show, for example, the panel board and circuit to which the device connects, and furthermore to identify which of several types of fixture are to be installed at that location.

food warmer wiring diagram wiring diagram review
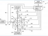
wrg 4948 hatco booster heater wiring diagram
A set of wiring diagrams may be required by the electrical inspection authority to take on relationship of the address to the public electrical supply system.
Wiring diagrams will after that count up panel schedules for circuit breaker panelboards, and riser diagrams for special facilities such as fire alarm or closed circuit television or supplementary special services.
You Might Also Like :
[gembloong_related_posts count=3]
hatco glo ray wiring diagram another photograph:

hatco wiring diagram wiring diagram
food warmer wiring diagram wiring diagram review
hatco booster heater wiring diagram 1 wiring diagram source

















