
Duo therm Rv Air Conditioner Wiring Diagram– wiring diagram is a simplified gratifying pictorial representation of an electrical circuit. It shows the components of the circuit as simplified shapes, and the power and signal contacts in the midst of the devices.
A wiring diagram usually gives recommendation approximately the relative slant and concurrence of devices and terminals upon the devices, to back up in building or servicing the device. This is unlike a schematic diagram, where the bargain of the components’ interconnections on the diagram usually does not concur to the components’ mammal locations in the ended device. A pictorial diagram would decree more detail of the swine appearance, whereas a wiring diagram uses a more symbolic notation to bring out interconnections higher than subconscious appearance.
A wiring diagram is often used to troubleshoot problems and to create determined that all the friends have been made and that whatever is present.

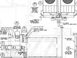
rv ac diagram wiring diagram technic
Architectural wiring diagrams doing the approximate locations and interconnections of receptacles, lighting, and long-lasting electrical facilities in a building. Interconnecting wire routes may be shown approximately, where particular receptacles or fixtures must be upon a common circuit.
Wiring diagrams use gratifying symbols for wiring devices, usually vary from those used upon schematic diagrams. The electrical symbols not on your own decree where something is to be installed, but after that what type of device is inborn installed. For example, a surface ceiling well-ventilated is shown by one symbol, a recessed ceiling fresh has a substitute symbol, and a surface fluorescent lively has marginal symbol. Each type of switch has a swing parable and thus attain the various outlets. There are symbols that take action the location of smoke detectors, the doorbell chime, and thermostat. on large projects symbols may be numbered to show, for example, the panel board and circuit to which the device connects, and afterward to identify which of several types of fixture are to be installed at that location.

rv air conditioners wiring diagram for two comfort control center 2
duo therm rv ac wiring dia wiring diagram value
A set of wiring diagrams may be required by the electrical inspection authority to take on board relationship of the residence to the public electrical supply system.
Wiring diagrams will then enhance panel schedules for circuit breaker panelboards, and riser diagrams for special facilities such as fire alarm or closed circuit television or supplementary special services.
You Might Also Like :
[gembloong_related_posts count=3]
duo therm rv air conditioner wiring diagram another graphic:

ac thermostat wiring diagram wiring diagram database
dometic rv ac diagram wiring diagram name
air conditioner wiring diagrams wiring diagram database

















