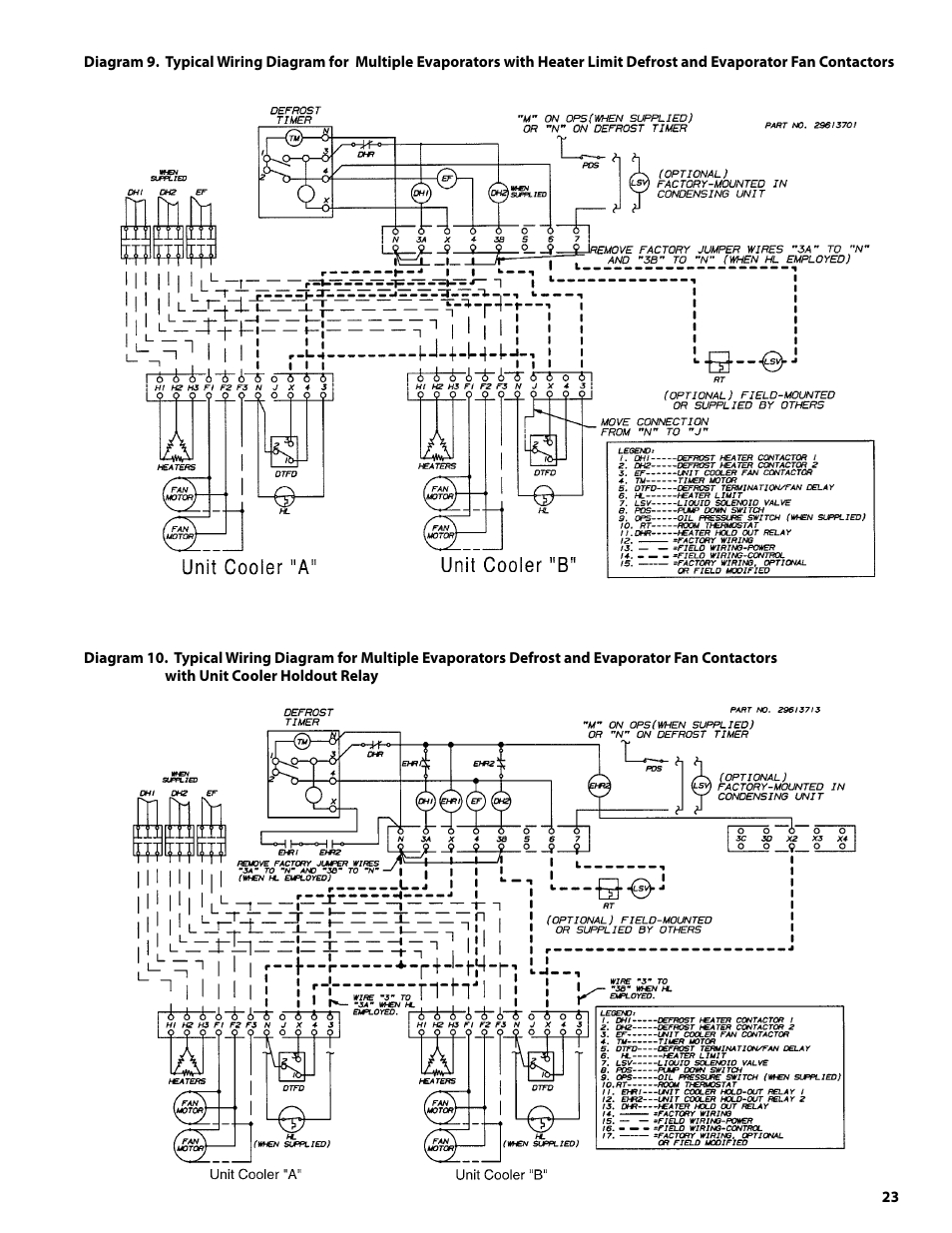
Bohn Walk In Freezer Wiring Diagram


Warning: count(): Parameter must be an array or an object that implements Countable in /var/www/html/autocardesign.org/wp-content/themes/silegan-wordpress-theme/inc/themeson.class.php on line 625
Bohn Walk In Freezer Wiring Diagram Ys 3016 Walk In Wiring Diagram Free Diagram
Bohn Walk In Freezer Wiring Diagram Ys 3016 Walk In Wiring Diagram Free Diagram
See also  Bose Car Stereo Wiring Diagram
Tags: