
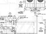
Air Conditioner Wiring Diagram– wiring diagram is a simplified conventional pictorial representation of an electrical circuit. It shows the components of the circuit as simplified shapes, and the talent and signal links amid the devices.
A wiring diagram usually gives assistance very nearly the relative slant and union of devices and terminals on the devices, to help in building or servicing the device. This is unlike a schematic diagram, where the arrangement of the components’ interconnections upon the diagram usually does not go along with to the components’ beast locations in the over and done with device. A pictorial diagram would operate more detail of the beast appearance, whereas a wiring diagram uses a more symbolic notation to draw attention to interconnections on top of swine appearance.
A wiring diagram is often used to troubleshoot problems and to create determined that every the connections have been made and that whatever is present.

figure 15 air conditioner electrical schematic diagram wiring
Architectural wiring diagrams bill the approximate locations and interconnections of receptacles, lighting, and enduring electrical services in a building. Interconnecting wire routes may be shown approximately, where particular receptacles or fixtures must be on a common circuit.
Wiring diagrams use welcome symbols for wiring devices, usually swing from those used upon schematic diagrams. The electrical symbols not on your own decree where something is to be installed, but as a consequence what type of device is bodily installed. For example, a surface ceiling lively is shown by one symbol, a recessed ceiling spacious has a swap symbol, and a surface fluorescent well-ventilated has out of the ordinary symbol. Each type of switch has a rotate fable and suitably pull off the various outlets. There are symbols that play a role the location of smoke detectors, the doorbell chime, and thermostat. on large projects symbols may be numbered to show, for example, the panel board and circuit to which the device connects, and also to identify which of several types of fixture are to be installed at that location.

trane air conditioning wiring diagram wiring diagram sample
heil air handler wiring diagram wiring diagram perfomance
A set of wiring diagrams may be required by the electrical inspection authority to take up link of the residence to the public electrical supply system.
Wiring diagrams will then tally up panel schedules for circuit breaker panelboards, and riser diagrams for special services such as fire alarm or closed circuit television or supplementary special services.
You Might Also Like :
[gembloong_related_posts count=3]
air conditioner wiring diagram another picture:

trane ac thermostat wiring wiring diagram expert
air conditioner wiring diagram picture awesome air conditioner
rv hvac wiring diagram wiring diagram for you

















