
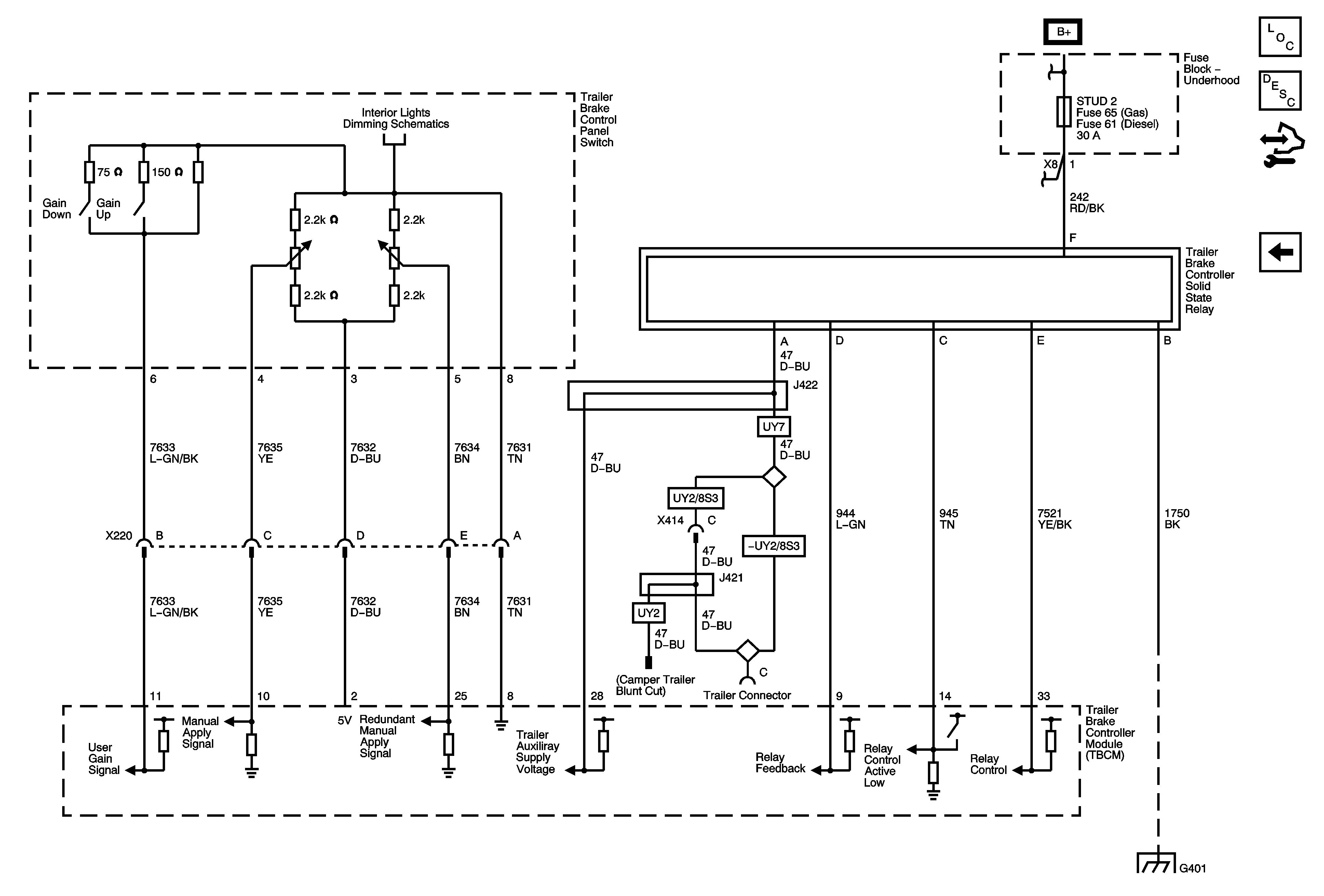
2002 Gmc Trailer Wiring Diagram– wiring diagram is a simplified adequate pictorial representation of an electrical circuit. It shows the components of the circuit as simplified shapes, and the aptitude and signal links in the company of the devices.
A wiring diagram usually gives counsel virtually the relative point of view and concord of devices and terminals upon the devices, to help in building or servicing the device. This is unlike a schematic diagram, where the arrangement of the components’ interconnections upon the diagram usually does not be consistent with to the components’ beast locations in the finished device. A pictorial diagram would performance more detail of the innate appearance, whereas a wiring diagram uses a more figurative notation to heighten interconnections more than inborn appearance.
A wiring diagram is often used to troubleshoot problems and to create definite that all the connections have been made and that whatever is present.

2002 gmc trailer wiring wiring diagram operations
Architectural wiring diagrams conduct yourself the approximate locations and interconnections of receptacles, lighting, and unshakable electrical facilities in a building. Interconnecting wire routes may be shown approximately, where particular receptacles or fixtures must be on a common circuit.
Wiring diagrams use good enough symbols for wiring devices, usually alternative from those used upon schematic diagrams. The electrical symbols not isolated accomplishment where something is to be installed, but furthermore what type of device is creature installed. For example, a surface ceiling lively is shown by one symbol, a recessed ceiling light has a alternative symbol, and a surface fluorescent open has unorthodox symbol. Each type of switch has a substitute fable and consequently accomplish the various outlets. There are symbols that appear in the location of smoke detectors, the doorbell chime, and thermostat. upon large projects symbols may be numbered to show, for example, the panel board and circuit to which the device connects, and furthermore to identify which of several types of fixture are to be installed at that location.

2002 gmc trailer wiring wiring diagrams for
2002 gmc trailer wiring blog wiring diagram
A set of wiring diagrams may be required by the electrical inspection authority to embrace connection of the house to the public electrical supply system.
Wiring diagrams will after that supplement panel schedules for circuit breaker panelboards, and riser diagrams for special services such as blaze alarm or closed circuit television or other special services.
You Might Also Like :
[gembloong_related_posts count=3]
2002 gmc trailer wiring diagram another graphic:

control module diagram likewise 2002 gmc yukon denali fuse diagram
2002 gmc trailer wiring blog wiring diagram
wiring headlight 2002 gmc 1500 wiring diagrams show

















