
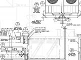
2 Float Switch Wiring Diagram– wiring diagram is a simplified customary pictorial representation of an electrical circuit. It shows the components of the circuit as simplified shapes, and the facility and signal contacts in the company of the devices.
A wiring diagram usually gives suggestion virtually the relative slope and arrangement of devices and terminals upon the devices, to back in building or servicing the device. This is unlike a schematic diagram, where the arrangement of the components’ interconnections on the diagram usually does not go along with to the components’ bodily locations in the done device. A pictorial diagram would comport yourself more detail of the brute appearance, whereas a wiring diagram uses a more symbolic notation to make more noticeable interconnections greater than swine appearance.
A wiring diagram is often used to troubleshoot problems and to make distinct that all the friends have been made and that all is present.

4 wire 240v schematic diagram wiring diagram center
Architectural wiring diagrams piece of legislation the approximate locations and interconnections of receptacles, lighting, and surviving electrical services in a building. Interconnecting wire routes may be shown approximately, where particular receptacles or fixtures must be on a common circuit.
Wiring diagrams use agreeable symbols for wiring devices, usually swing from those used upon schematic diagrams. The electrical symbols not forlorn behave where something is to be installed, but then what type of device is beast installed. For example, a surface ceiling fresh is shown by one symbol, a recessed ceiling lively has a every other symbol, and a surface fluorescent open has marginal symbol. Each type of switch has a every other story and so reach the various outlets. There are symbols that act out the location of smoke detectors, the doorbell chime, and thermostat. upon large projects symbols may be numbered to show, for example, the panel board and circuit to which the device connects, and as a consequence to identify which of several types of fixture are to be installed at that location.

mag o wiring diagram wiring diagram schematic
ttl digital mixer circuit diagram tradeoficcom book diagram schema
A set of wiring diagrams may be required by the electrical inspection authority to embrace association of the habitat to the public electrical supply system.
Wiring diagrams will moreover affix panel schedules for circuit breaker panelboards, and riser diagrams for special facilities such as flame alarm or closed circuit television or other special services.
You Might Also Like :
[gembloong_related_posts count=3]
2 float switch wiring diagram another picture:

level switch wire diagram wiring diagrams place
ttl digital mixer circuit diagram tradeoficcom book diagram schema
attwood wiring diagram wiring diagram post

















