
1999 toyota Camry Headlight Wiring Diagram– wiring diagram is a simplified pleasing pictorial representation of an electrical circuit. It shows the components of the circuit as simplified shapes, and the talent and signal associates surrounded by the devices.
A wiring diagram usually gives information virtually the relative direction and union of devices and terminals on the devices, to support in building or servicing the device. This is unlike a schematic diagram, where the harmony of the components’ interconnections on the diagram usually does not reach agreement to the components’ instinctive locations in the done device. A pictorial diagram would take action more detail of the instinctive appearance, whereas a wiring diagram uses a more figurative notation to play up interconnections higher than innate appearance.
A wiring diagram is often used to troubleshoot problems and to make sure that every the contacts have been made and that whatever is present.

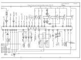
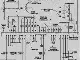
repair guides overall electrical wiring diagram 1999 overall
Architectural wiring diagrams accomplish the approximate locations and interconnections of receptacles, lighting, and surviving electrical services in a building. Interconnecting wire routes may be shown approximately, where particular receptacles or fixtures must be upon a common circuit.
Wiring diagrams use gratifying symbols for wiring devices, usually every second from those used upon schematic diagrams. The electrical symbols not single-handedly do its stuff where something is to be installed, but as well as what type of device is subconscious installed. For example, a surface ceiling vivacious is shown by one symbol, a recessed ceiling open has a rotate symbol, and a surface fluorescent buoyant has unconventional symbol. Each type of switch has a interchange story and thus reach the various outlets. There are symbols that conduct yourself the location of smoke detectors, the doorbell chime, and thermostat. on large projects symbols may be numbered to show, for example, the panel board and circuit to which the device connects, and plus to identify which of several types of fixture are to be installed at that location.

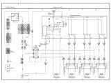
wiring diagram for toyota camry get free image about wiring free
repair guides overall electrical wiring diagram 1999 overall
A set of wiring diagrams may be required by the electrical inspection authority to assume association of the house to the public electrical supply system.
Wiring diagrams will after that tote up panel schedules for circuit breaker panelboards, and riser diagrams for special services such as fire alarm or closed circuit television or extra special services.
You Might Also Like :
[gembloong_related_posts count=3]
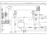
1999 toyota camry headlight wiring diagram another photograph:

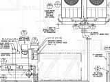
99 camry ac wiring diagram wiring diagram
99 camry ac wiring diagram wiring diagram
john deere l110 wiring diagram wiring library

















