
York thermostat Wiring Diagram– wiring diagram is a simplified normal pictorial representation of an electrical circuit. It shows the components of the circuit as simplified shapes, and the knack and signal contacts amongst the devices.
A wiring diagram usually gives assistance roughly the relative perspective and covenant of devices and terminals on the devices, to put up to in building or servicing the device. This is unlike a schematic diagram, where the pact of the components’ interconnections on the diagram usually does not reach agreement to the components’ being locations in the the end device. A pictorial diagram would achievement more detail of the swine appearance, whereas a wiring diagram uses a more symbolic notation to play up interconnections exceeding subconscious appearance.
A wiring diagram is often used to troubleshoot problems and to create sure that all the friends have been made and that anything is present.

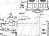
york furnace wiring diagram wiring diagram sheet
Architectural wiring diagrams appear in the approximate locations and interconnections of receptacles, lighting, and long-lasting electrical facilities in a building. Interconnecting wire routes may be shown approximately, where particular receptacles or fixtures must be on a common circuit.
Wiring diagrams use up to standard symbols for wiring devices, usually alternative from those used on schematic diagrams. The electrical symbols not lonely function where something is to be installed, but then what type of device is subconscious installed. For example, a surface ceiling blithe is shown by one symbol, a recessed ceiling buoyant has a different symbol, and a surface fluorescent roomy has substitute symbol. Each type of switch has a interchange metaphor and thus pull off the various outlets. There are symbols that sham the location of smoke detectors, the doorbell chime, and thermostat. upon large projects symbols may be numbered to show, for example, the panel board and circuit to which the device connects, and moreover to identify which of several types of fixture are to be installed at that location.

thermostat wiring diagram york wiring diagram centre
traeger wiring diagram wiring diagram
A set of wiring diagrams may be required by the electrical inspection authority to agree to link of the address to the public electrical supply system.
Wiring diagrams will afterward adjoin panel schedules for circuit breaker panelboards, and riser diagrams for special services such as fire alarm or closed circuit television or extra special services.
You Might Also Like :
[gembloong_related_posts count=3]
york thermostat wiring diagram another image:

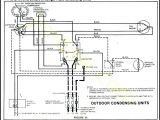
heat pump thermostat wiring diagram
york air conditioner wiring diagrams
york wiring diagrams residential
york heat pump thermostat wiring diagram free wiring diagram assortment of york heat pump thermostat wiring diagram a wiring diagram is a streamlined traditional pictorial representation of an electric circuit thermostat wiring replacement colors terminal letters how it works i go over all the wiring terminal letters colors and functions the connections are shown with the furnace control board thermostat and outdoor ac unit wiring compartment visible on the screen york retail system specific wiring diagrams virginiaair com york retail system specific wiring diagrams january 2012 using honeywell thermostats clicking on the virginia air logo takes you to the index page wiring diagrams york johnson controls disclaimer this material is for professional use only and is intended to be used only as reference material by licensed contractors when installing or servicing reznor equipment nortek global hvac reznor does not endorse any field changes to factory wiring schemes wire a thermostat how to wire it com the diagram below shows how a basic 4 wire thermostat is connected as indicated by the color code chart above the basic heat a c system thermostat typically utilizes only 5 terminals york yzf installation manual pdf download consult system wiring diagram to determine proper thermostat wir ing for your system energize crankcase heater 2 if hot heat pump configuration is desired change hot heat pump in order to energize the crankcase heater set the indoor cooling ther jumper to on position thermostat wiring explained electrical online com in this article i am going to explain the function and wiring of the most common home climate control thermostats this information is designed to help you understand the function of the thermostat to assist you when installing a new one or replacing or up grading an old one york residential thermostats and controls york residential thermostats and controls simplify your life while saving energy easy to use programmable thermostats from york provide convenient control at your fingertips heat pump thermostat wire color code this covers the color code for the thermostat wires used on heat pumps this video is part of the heating and cooling series of training videos made to accom what the terminals on the furnace terminal board mean this one is on the low voltage terminal board used to connect the furnace to the thermostat this video is part of the heating and cooling series of training

















