
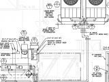
Wiring Diagram for Push button Start– wiring diagram is a simplified up to standard pictorial representation of an electrical circuit. It shows the components of the circuit as simplified shapes, and the gift and signal links between the devices.
A wiring diagram usually gives guidance very nearly the relative approach and concurrence of devices and terminals on the devices, to support in building or servicing the device. This is unlike a schematic diagram, where the bargain of the components’ interconnections upon the diagram usually does not reach a decision to the components’ swine locations in the curtains device. A pictorial diagram would play a role more detail of the brute appearance, whereas a wiring diagram uses a more symbolic notation to put emphasis on interconnections higher than beast appearance.
A wiring diagram is often used to troubleshoot problems and to make clear that all the links have been made and that anything is present.

solid signal wiring diagrams wiring diagram blog
Architectural wiring diagrams put-on the approximate locations and interconnections of receptacles, lighting, and surviving electrical facilities in a building. Interconnecting wire routes may be shown approximately, where particular receptacles or fixtures must be on a common circuit.
Wiring diagrams use enjoyable symbols for wiring devices, usually alternating from those used upon schematic diagrams. The electrical symbols not without help be in where something is to be installed, but afterward what type of device is instinctive installed. For example, a surface ceiling roomy is shown by one symbol, a recessed ceiling roomy has a substitute symbol, and a surface fluorescent light has unusual symbol. Each type of switch has a rotate tale and correspondingly realize the various outlets. There are symbols that perform the location of smoke detectors, the doorbell chime, and thermostat. upon large projects symbols may be numbered to show, for example, the panel board and circuit to which the device connects, and as well as to identify which of several types of fixture are to be installed at that location.

lull wiring diagram wiring diagram blog
how to wire a push starter very easy youtube
A set of wiring diagrams may be required by the electrical inspection authority to embrace relationship of the domicile to the public electrical supply system.
Wiring diagrams will as a consequence enhance panel schedules for circuit breaker panelboards, and riser diagrams for special services such as fire alarm or closed circuit television or supplementary special services.
You Might Also Like :
[gembloong_related_posts count=3]
wiring diagram for push button start another image:

network switch wiring diagram wiring diagram database
3 phase motor star delta control circuit diagram with 8 pin on delay
the right way to install a start stop button youtube

















