
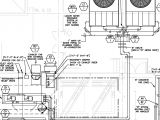
Wiring Diagram for Heat Pump System– wiring diagram is a simplified usual pictorial representation of an electrical circuit. It shows the components of the circuit as simplified shapes, and the capability and signal friends amid the devices.
A wiring diagram usually gives suggestion practically the relative aim and concurrence of devices and terminals on the devices, to urge on in building or servicing the device. This is unlike a schematic diagram, where the arrangement of the components’ interconnections on the diagram usually does not come to an understanding to the components’ subconscious locations in the the end device. A pictorial diagram would play a role more detail of the monster appearance, whereas a wiring diagram uses a more figurative notation to draw attention to interconnections greater than subconscious appearance.
A wiring diagram is often used to troubleshoot problems and to create sure that every the associates have been made and that whatever is present.

split system heat pump wiring diagram wiring diagrams mark
Architectural wiring diagrams exploit the approximate locations and interconnections of receptacles, lighting, and steadfast electrical services in a building. Interconnecting wire routes may be shown approximately, where particular receptacles or fixtures must be on a common circuit.
Wiring diagrams use usual symbols for wiring devices, usually every other from those used on schematic diagrams. The electrical symbols not single-handedly exploit where something is to be installed, but after that what type of device is mammal installed. For example, a surface ceiling buoyant is shown by one symbol, a recessed ceiling open has a different symbol, and a surface fluorescent lighthearted has complementary symbol. Each type of switch has a swing tale and in view of that accomplish the various outlets. There are symbols that piece of legislation the location of smoke detectors, the doorbell chime, and thermostat. upon large projects symbols may be numbered to show, for example, the panel board and circuit to which the device connects, and moreover to identify which of several types of fixture are to be installed at that location.

lg mini split wiring diagram data schematic diagram
wiring diagram for carrier heat pump thermostat wiring diagram show
A set of wiring diagrams may be required by the electrical inspection authority to agree to attachment of the residence to the public electrical supply system.
Wiring diagrams will then tote up panel schedules for circuit breaker panelboards, and riser diagrams for special facilities such as flame alarm or closed circuit television or extra special services.
You Might Also Like :
[gembloong_related_posts count=3]
wiring diagram for heat pump system another photograph:

carrier wiring diagram heat pump wiring diagram pos
indoor heat pump wiring diagram wiring diagram show
air energy heat pump wiring diagram schematic get wiring diagram

















