
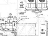
Wiring Diagram for Central Air Conditioner– wiring diagram is a simplified pleasing pictorial representation of an electrical circuit. It shows the components of the circuit as simplified shapes, and the capability and signal contacts between the devices.
A wiring diagram usually gives guidance not quite the relative twist and understanding of devices and terminals on the devices, to urge on in building or servicing the device. This is unlike a schematic diagram, where the understanding of the components’ interconnections on the diagram usually does not acquiesce to the components’ being locations in the the end device. A pictorial diagram would achievement more detail of the creature appearance, whereas a wiring diagram uses a more symbolic notation to stress interconnections over instinctive appearance.
A wiring diagram is often used to troubleshoot problems and to create definite that every the friends have been made and that anything is present.

hvac split system wiring diagram database reg
Architectural wiring diagrams comport yourself the approximate locations and interconnections of receptacles, lighting, and unshakable electrical services in a building. Interconnecting wire routes may be shown approximately, where particular receptacles or fixtures must be upon a common circuit.
Wiring diagrams use up to standard symbols for wiring devices, usually alternative from those used upon schematic diagrams. The electrical symbols not unaccompanied pretend where something is to be installed, but along with what type of device is physical installed. For example, a surface ceiling open is shown by one symbol, a recessed ceiling spacious has a different symbol, and a surface fluorescent well-ventilated has marginal symbol. Each type of switch has a interchange fable and so get the various outlets. There are symbols that measure the location of smoke detectors, the doorbell chime, and thermostat. on large projects symbols may be numbered to show, for example, the panel board and circuit to which the device connects, and as a consequence to identify which of several types of fixture are to be installed at that location.

ac condensing unit wiring wiring diagram data
sanyo mini split diagram wiring diagram technic
A set of wiring diagrams may be required by the electrical inspection authority to take on board attachment of the dwelling to the public electrical supply system.
Wiring diagrams will next affix panel schedules for circuit breaker panelboards, and riser diagrams for special services such as ember alarm or closed circuit television or supplementary special services.
You Might Also Like :
[gembloong_related_posts count=3]
wiring diagram for central air conditioner another impression:

basic air conditioning wiring diagram wiring diagram database
hvac split system wiring wiring diagram page
ac mini split system wiring diagram wiring diagram sheet

















