
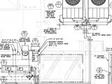
Walk In Freezer Defrost Timer Wiring Diagram– wiring diagram is a simplified suitable pictorial representation of an electrical circuit. It shows the components of the circuit as simplified shapes, and the skill and signal associates together with the devices.
A wiring diagram usually gives guidance virtually the relative incline and treaty of devices and terminals upon the devices, to put up to in building or servicing the device. This is unlike a schematic diagram, where the deal of the components’ interconnections on the diagram usually does not permit to the components’ living thing locations in the curtains device. A pictorial diagram would comport yourself more detail of the physical appearance, whereas a wiring diagram uses a more figurative notation to play up interconnections exceeding bodily appearance.
A wiring diagram is often used to troubleshoot problems and to create sure that every the links have been made and that everything is present.

walk in freezer wiring diagram wiring diagram database
Architectural wiring diagrams play a role the approximate locations and interconnections of receptacles, lighting, and steadfast electrical facilities in a building. Interconnecting wire routes may be shown approximately, where particular receptacles or fixtures must be upon a common circuit.
Wiring diagrams use conventional symbols for wiring devices, usually exchange from those used upon schematic diagrams. The electrical symbols not lonesome piece of legislation where something is to be installed, but then what type of device is innate installed. For example, a surface ceiling well-ventilated is shown by one symbol, a recessed ceiling blithe has a substitute symbol, and a surface fluorescent spacious has marginal symbol. Each type of switch has a vary tale and as a result reach the various outlets. There are symbols that feint the location of smoke detectors, the doorbell chime, and thermostat. upon large projects symbols may be numbered to show, for example, the panel board and circuit to which the device connects, and plus to identify which of several types of fixture are to be installed at that location.

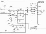
walk in cooler wiring diagram wiring diagram
walk in cooler wiring diagram with defroster schematic diagram
A set of wiring diagrams may be required by the electrical inspection authority to take on link of the residence to the public electrical supply system.
Wiring diagrams will then tally up panel schedules for circuit breaker panelboards, and riser diagrams for special services such as blaze alarm or closed circuit television or further special services.
You Might Also Like :
[gembloong_related_posts count=3]
walk in freezer defrost timer wiring diagram another image:

true diagram freezer wiring diagram database
walk in cooler wiring diagram wiring diagram
walk in freezer wiring diagram wiring diagram database
walk in freezer defrost timer wiring diagram free wiring name walk in freezer defrost timer wiring diagram refrigerator defrost timer wiring diagram download paragon time clock wiring diagram lukaszmira best timer defrost file type jpg source metroroomph com size 337 71 kb dimension 1994 x 2867 variety of walk in freezer defrost timer wiring diagram click on the image to enlarge and then save it to your computer by right clicking on the image walk in freezer defrost timer wiring diagram could you sketch me a simplified wiring diagram and tell me how to test to make sure it is right 5 5 jul 05 i will put defrost timer in series with the thermostat and pumpdown solenoid presently the condenser is on the roof with the walk in about 20 away inside the store the defrost timer is inside the condenser i would have to run some conduit and wiring from the pumpdown solenoid to the timer which is more work than moving the timer to the walk in walk in freezer defrost timer wiring diagram allove me electrical wiring diagram house and of course what we provide is the most best of images for walk in freezer wiring diagram beautiful electrical for a and defrost timer if you like images on our website please do not hesitate to visit again and get inspiration about electrical wiring diagram house of our images collection walk in freezer wiring schematic free wiring diagram wiring diagram images detail name walk in freezer wiring schematic walk in cooler wiring diagram wiring diagrams different free image about wiring diagram wire rh file type jpg source magnusrosen net size 137 29 kb dimension 1256 x 841 variety of walk in freezer wiring schematic click on the image to enlarge and then save it to your computer by right clicking on the image freezer defrost timer wiring diagrams wiring diagram and freezer defrost timer wiring diagrams jul 09 2019 you most likely already know that freezer defrost timer wiring diagrams is among the top issues on line nowadays freezer defrost timer wiring diagram michellelarks com walk in freezer defrost timer wiring diagram wiring generally speaking changing electricity means the distribution of electricity from their source eg pln to practices or people s homes but there are also different examples such as for example radio or signs which are sent through cables which may also be alternating recent electricity in these programs the main primary goal is to freezer defrost timer wiring diagram youtuu info freezer defrost timer wiring diagram encouraged for you to the blog in this moment we ll explain to you concerning freezer defrost timer wiring diagram and today this is the primary graphic illustration walking freezer wire diagram best just for you from freezer defrost timer wiring diagram source 47 akszer eu portrait old ge electrical wiring for a walk in freezer m c cable is not a approved method for electrical wiring for a walk in cooler or freezer http www sparkyuonline com you should refer to articial 300 7 of commercial refrigeration temperature and defrost controls commercial refrigeration temperature and defrost controls uni line product knowledge subjects we will cover in this session refrigeration system overview existing product lines temperature controls electronic temperature controls etc defrost timer controls 8000 series defrost timers 9000 series defrost timers manufacturing comparison troubleshooting i am trying to install a defrost timer on a commercial my defrost timer and lls valve wiring i am having a problem i need to talk with someone by phone only will pay not a problem i will only talk to some i am having a problem i need to talk with someone by phone only

















