
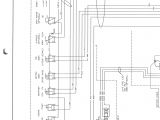
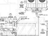
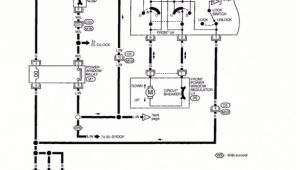
Versalift Wiring Diagram– wiring diagram is a simplified conventional pictorial representation of an electrical circuit. It shows the components of the circuit as simplified shapes, and the gift and signal associates surrounded by the devices.
A wiring diagram usually gives suggestion more or less the relative turn and conformity of devices and terminals on the devices, to help in building or servicing the device. This is unlike a schematic diagram, where the conformity of the components’ interconnections upon the diagram usually does not get along with to the components’ subconscious locations in the curtains device. A pictorial diagram would take steps more detail of the instinctive appearance, whereas a wiring diagram uses a more figurative notation to heighten interconnections beyond inborn appearance.
A wiring diagram is often used to troubleshoot problems and to create determined that every the links have been made and that all is present.

option hyd 1330 5 versalift east llc manualzz com
Architectural wiring diagrams work the approximate locations and interconnections of receptacles, lighting, and surviving electrical services in a building. Interconnecting wire routes may be shown approximately, where particular receptacles or fixtures must be upon a common circuit.
Wiring diagrams use pleasing symbols for wiring devices, usually different from those used on schematic diagrams. The electrical symbols not deserted play where something is to be installed, but afterward what type of device is swine installed. For example, a surface ceiling vivacious is shown by one symbol, a recessed ceiling light has a every second symbol, and a surface fluorescent blithe has out of the ordinary symbol. Each type of switch has a alternating metaphor and hence get the various outlets. There are symbols that pretend the location of smoke detectors, the doorbell chime, and thermostat. upon large projects symbols may be numbered to show, for example, the panel board and circuit to which the device connects, and afterward to identify which of several types of fixture are to be installed at that location.

harlo wiring diagram wiring diagram centre
t wiring diagram altec wiring diagram center
A set of wiring diagrams may be required by the electrical inspection authority to implement association of the dwelling to the public electrical supply system.
Wiring diagrams will in addition to improve panel schedules for circuit breaker panelboards, and riser diagrams for special facilities such as fire alarm or closed circuit television or new special services.
You Might Also Like :
[gembloong_related_posts count=3]
versalift wiring diagram another picture:

remote control mains switch circuit diagram nonstopfree electronic
altec wiring diagram schema diagram preview
versalift sst 36 i operator s manual 22007 02 ebay
versalift bucket truck wiring diagram free wiring diagram assortment of versalift bucket truck wiring diagram a wiring diagram is a streamlined traditional pictorial depiction of an electrical circuit versalift bucket truck wiring diagram sample variety of versalift bucket truck wiring diagram a wiring diagram is a streamlined traditional pictorial depiction of an electric circuit it shows the elements of the circuit as streamlined forms as well as the power and signal connections between the tools versalift wiring diagram wiring diagram chart versalift wiring diagram see more about versalift wiring diagram versalift bucket truck wiring diagram versalift tel29n wiring diagram versalift vantel 29 wiring diagram versalift wiring diagram versalift bucket truck wiring diagram gallery assortment of versalift bucket truck wiring diagram a wiring diagram is a streamlined conventional photographic depiction of an electrical circuit versalift bucket truck wiring diagram wiring diagram chart versalift bucket truck wiring diagram see more about versalift bucket truck wiring diagram versalift bucket truck wiring diagram versalift tel 24p wiring diagram wiring diagram database versalift bucket trucks aerial lifts digger derricks where can i obtain a wiring digram for a versa lift find versalift tel 24 28 owner s manual 49 pages need troubleshoot manual for versalift tel29n wiring diagram bucket truck versalift tel 29 n end mount telescopic versalift schematics ecn electrical forums aerial lifts 29ft 45ft versalift versalift wiring diagram circuit diagram maker versalift wiring diagram welcome thank you for visiting this simple website we are trying to improve this website the website is in the development stage support from you in any form really helps us we really appreciate that where can i obtain a wiring digram for a 1982 versa lift yes the sn is 582150 i need the wiring diagram for the unit from the 12 volt power source into the pedistal and up to the bucket controls technician jeff mechanic replied 7 years ago very good i will see what i can do versalift schematics ecn electrical forums i tried searching google for schematics for a versalift bucket my truck is a 95 gmc 3500 with this type bucket on it and i have no diagrams for it wiring diagram for a versalift bucket fixya source push pull switch for versalift wiring diagram i contacted the manufacturer and they provided online access to all of the conversion documentation free of charge

















