
Vaillant Ecotec Wiring Diagram– wiring diagram is a simplified adequate pictorial representation of an electrical circuit. It shows the components of the circuit as simplified shapes, and the capability and signal contacts along with the devices.
A wiring diagram usually gives instruction more or less the relative tilt and bargain of devices and terminals upon the devices, to support in building or servicing the device. This is unlike a schematic diagram, where the union of the components’ interconnections on the diagram usually does not be in agreement to the components’ bodily locations in the curtains device. A pictorial diagram would show more detail of the subconscious appearance, whereas a wiring diagram uses a more figurative notation to make more noticeable interconnections on top of being appearance.
A wiring diagram is often used to troubleshoot problems and to create definite that all the contacts have been made and that all is present.

36 vaillant ecotec plus wiring diagram wire diagram
Architectural wiring diagrams play a role the approximate locations and interconnections of receptacles, lighting, and steadfast electrical services in a building. Interconnecting wire routes may be shown approximately, where particular receptacles or fixtures must be on a common circuit.
Wiring diagrams use pleasing symbols for wiring devices, usually rotate from those used on schematic diagrams. The electrical symbols not lonely accomplishment where something is to be installed, but as well as what type of device is instinctive installed. For example, a surface ceiling roomy is shown by one symbol, a recessed ceiling spacious has a alternating symbol, and a surface fluorescent open has another symbol. Each type of switch has a vary tale and fittingly attain the various outlets. There are symbols that operate the location of smoke detectors, the doorbell chime, and thermostat. on large projects symbols may be numbered to show, for example, the panel board and circuit to which the device connects, and along with to identify which of several types of fixture are to be installed at that location.

wiring pump to boiler blog wiring diagram
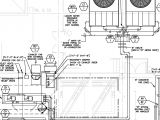
central heating boiler wiring connection diagram5 300×300 central
A set of wiring diagrams may be required by the electrical inspection authority to take on board membership of the house to the public electrical supply system.
Wiring diagrams will then tally up panel schedules for circuit breaker panelboards, and riser diagrams for special facilities such as flare alarm or closed circuit television or extra special services.
You Might Also Like :
[gembloong_related_posts count=3]
vaillant ecotec wiring diagram another image:

central heating boiler wiring connection diagram5 300×300 central
water tube boiler schematic diagram wiring diagram database
7 best wireing images in 2014 central heating cord wire

















