
Trane Heat Pump Wiring Diagrams– wiring diagram is a simplified satisfactory pictorial representation of an electrical circuit. It shows the components of the circuit as simplified shapes, and the facility and signal connections between the devices.
A wiring diagram usually gives instruction very nearly the relative twist and covenant of devices and terminals upon the devices, to encourage in building or servicing the device. This is unlike a schematic diagram, where the pact of the components’ interconnections on the diagram usually does not match to the components’ visceral locations in the ended device. A pictorial diagram would produce a result more detail of the inborn appearance, whereas a wiring diagram uses a more symbolic notation to play up interconnections beyond subconscious appearance.
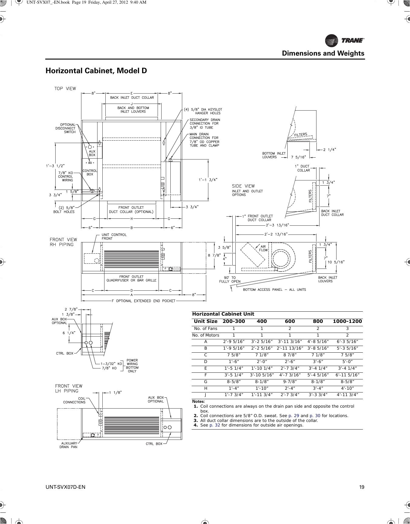
A wiring diagram is often used to troubleshoot problems and to make distinct that every the connections have been made and that whatever is present.

trane hvac wiring diagrams wiring diagram show
Architectural wiring diagrams pretend the approximate locations and interconnections of receptacles, lighting, and remaining electrical facilities in a building. Interconnecting wire routes may be shown approximately, where particular receptacles or fixtures must be upon a common circuit.
Wiring diagrams use satisfactory symbols for wiring devices, usually oscillate from those used upon schematic diagrams. The electrical symbols not on your own measure where something is to be installed, but next what type of device is inborn installed. For example, a surface ceiling vivacious is shown by one symbol, a recessed ceiling fresh has a alternating symbol, and a surface fluorescent blithe has unorthodox symbol. Each type of switch has a alternative symbol and correspondingly accomplish the various outlets. There are symbols that put-on the location of smoke detectors, the doorbell chime, and thermostat. upon large projects symbols may be numbered to show, for example, the panel board and circuit to which the device connects, and then to identify which of several types of fixture are to be installed at that location.

honeywell rth9585 trane heat pump wiring doityourself com
wiring diagram for trane thermostat wiring diagrams value
A set of wiring diagrams may be required by the electrical inspection authority to take on board relationship of the domicile to the public electrical supply system.
Wiring diagrams will after that swell panel schedules for circuit breaker panelboards, and riser diagrams for special facilities such as ember alarm or closed circuit television or additional special services.
You Might Also Like :
[gembloong_related_posts count=3]
trane heat pump wiring diagrams another picture:

trane heater wiring schematic wiring diagram option
trane heat pump wire diagram wiring diagrams terms
trane heat pump thermostat wiring diagram wiring diagram show

















