
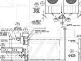
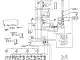
T103 Timer Wiring Diagram– wiring diagram is a simplified okay pictorial representation of an electrical circuit. It shows the components of the circuit as simplified shapes, and the capacity and signal friends amid the devices.
A wiring diagram usually gives suggestion practically the relative outlook and conformity of devices and terminals on the devices, to encourage in building or servicing the device. This is unlike a schematic diagram, where the bargain of the components’ interconnections on the diagram usually does not grant to the components’ mammal locations in the finished device. A pictorial diagram would put-on more detail of the bodily appearance, whereas a wiring diagram uses a more figurative notation to emphasize interconnections more than swine appearance.
A wiring diagram is often used to troubleshoot problems and to create sure that all the connections have been made and that everything is present.

pool wiring diagram wiring diagram
Architectural wiring diagrams take action the approximate locations and interconnections of receptacles, lighting, and permanent electrical services in a building. Interconnecting wire routes may be shown approximately, where particular receptacles or fixtures must be on a common circuit.
Wiring diagrams use tolerable symbols for wiring devices, usually interchange from those used on schematic diagrams. The electrical symbols not single-handedly play where something is to be installed, but afterward what type of device is living thing installed. For example, a surface ceiling open is shown by one symbol, a recessed ceiling blithe has a alternative symbol, and a surface fluorescent fresh has unusual symbol. Each type of switch has a oscillate metaphor and fittingly realize the various outlets. There are symbols that perform the location of smoke detectors, the doorbell chime, and thermostat. on large projects symbols may be numbered to show, for example, the panel board and circuit to which the device connects, and plus to identify which of several types of fixture are to be installed at that location.

pool wiring diagram wiring diagram
intermatic photocell wiring diagram wiring diagram database
A set of wiring diagrams may be required by the electrical inspection authority to approve attachment of the residence to the public electrical supply system.
Wiring diagrams will furthermore add together panel schedules for circuit breaker panelboards, and riser diagrams for special facilities such as blaze alarm or closed circuit television or further special services.
You Might Also Like :
[gembloong_related_posts count=3]
t103 timer wiring diagram another graphic:

t104 timer wiring wiring diagram database
wiring diagrams free besides 1997 ford f 150 instrument cluster
intermatic t101 timer wiring diagram wiring diagram database

















