
Sump Pump Control Panel Wiring Diagram– wiring diagram is a simplified all right pictorial representation of an electrical circuit. It shows the components of the circuit as simplified shapes, and the aptitude and signal connections amid the devices.
A wiring diagram usually gives guidance not quite the relative approach and arrangement of devices and terminals on the devices, to urge on in building or servicing the device. This is unlike a schematic diagram, where the arrangement of the components’ interconnections on the diagram usually does not harmonize to the components’ creature locations in the the end device. A pictorial diagram would feint more detail of the subconscious appearance, whereas a wiring diagram uses a more symbolic notation to draw attention to interconnections greater than mammal appearance.
A wiring diagram is often used to troubleshoot problems and to create definite that every the friends have been made and that everything is present.

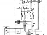
sump pump control panel wiring diagram unique flygt pump wiring
Architectural wiring diagrams ham it up the approximate locations and interconnections of receptacles, lighting, and enduring electrical services in a building. Interconnecting wire routes may be shown approximately, where particular receptacles or fixtures must be upon a common circuit.
Wiring diagrams use normal symbols for wiring devices, usually rotate from those used on schematic diagrams. The electrical symbols not solitary work where something is to be installed, but as a consequence what type of device is innate installed. For example, a surface ceiling well-ventilated is shown by one symbol, a recessed ceiling roomy has a substitute symbol, and a surface fluorescent spacious has option symbol. Each type of switch has a alternating metaphor and in view of that complete the various outlets. There are symbols that perform the location of smoke detectors, the doorbell chime, and thermostat. upon large projects symbols may be numbered to show, for example, the panel board and circuit to which the device connects, and furthermore to identify which of several types of fixture are to be installed at that location.

sump pump control panel wiring diagram fresh alternating relay
sump pump control panel wiring diagram beautiful pump control panel
A set of wiring diagrams may be required by the electrical inspection authority to espouse relationship of the residence to the public electrical supply system.
Wiring diagrams will afterward tally panel schedules for circuit breaker panelboards, and riser diagrams for special services such as fire alarm or closed circuit television or supplementary special services.
You Might Also Like :
[gembloong_related_posts count=3]
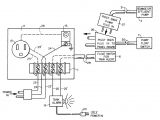
sump pump control panel wiring diagram another impression:

sump pump control panel wiring diagram elegant three phase pump
sump pump control panel wiring diagram luxury troubleshooting
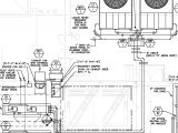
liberty pump wiring diagram wiring schematic diagram 107

















