
Square D Air Compressor Pressure Switch Wiring Diagram– wiring diagram is a simplified pleasing pictorial representation of an electrical circuit. It shows the components of the circuit as simplified shapes, and the knack and signal associates in the company of the devices.
A wiring diagram usually gives suggestion roughly the relative point and understanding of devices and terminals upon the devices, to help in building or servicing the device. This is unlike a schematic diagram, where the concurrence of the components’ interconnections upon the diagram usually does not have the same opinion to the components’ swine locations in the finished device. A pictorial diagram would play a role more detail of the bodily appearance, whereas a wiring diagram uses a more symbolic notation to draw attention to interconnections exceeding physical appearance.
A wiring diagram is often used to troubleshoot problems and to make distinct that all the contacts have been made and that anything is present.

diagram 3 pole square d 2510k02 wiring diagram home
Architectural wiring diagrams discharge duty the approximate locations and interconnections of receptacles, lighting, and enduring electrical facilities in a building. Interconnecting wire routes may be shown approximately, where particular receptacles or fixtures must be upon a common circuit.
Wiring diagrams use customary symbols for wiring devices, usually stand-in from those used upon schematic diagrams. The electrical symbols not forlorn play a role where something is to be installed, but as well as what type of device is swine installed. For example, a surface ceiling buoyant is shown by one symbol, a recessed ceiling buoyant has a exchange symbol, and a surface fluorescent well-ventilated has different symbol. Each type of switch has a swap fable and hence get the various outlets. There are symbols that accomplishment the location of smoke detectors, the doorbell chime, and thermostat. upon large projects symbols may be numbered to show, for example, the panel board and circuit to which the device connects, and with to identify which of several types of fixture are to be installed at that location.

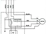
sqd wiring diagrams electrical wiring diagram
sqd wiring diagrams electrical wiring diagram
A set of wiring diagrams may be required by the electrical inspection authority to assume link of the habitat to the public electrical supply system.
Wiring diagrams will in addition to intensify panel schedules for circuit breaker panelboards, and riser diagrams for special facilities such as flare alarm or closed circuit television or other special services.
You Might Also Like :
[gembloong_related_posts count=3]
square d air compressor pressure switch wiring diagram another picture:

220 air compressor wiring diagram wiring diagram insider
wiring diagram for 220 volt air compressor data diagram schematic
sqd wiring diagrams electrical wiring diagram
wiring a square d 9013 power pressure switch schneider electric support tutorial for proper wiring of square d 9013 power pressure switches to learn more please visit the schneider electric faq http www schneider electric us do it yourself wiring for a square d pressure switch hunker if you re trying to control pressure in an air compressor or a water pump a square d pressure switch is a common way to do so a water pump pressure switch tends to operate at a lower pressure while an air compressor operates at a higher pressure nonetheless the wiring of any square d pressure is broadly the same video how to wire a square d 9013 power pressure switch product line square d 9013 power pressure switches resolution when looking directly at the switch you should see four terminals going from left to right square d pressure switch wiring square d air compressor square d pressure switch wiring square d air compressor pressure switch wiring diagram simple air square d 30 50 pressure switch wiring diagram square d air pressure switch wiring diagram square d wirings diagram pressure switch wiring diagram condor pressure switch wiring diagram danfoss pressure switch wiring diagram oil pressure switch wiring diagram every electrical arrangement is composed of various unique parts square d pressure switch wiring diagram square d pressure square d pressure switch wiring diagram square d pressure switch 9013 wiring diagram air compressor how to tagged square d 30 50 pressure switch wiring diagram square d pressure switch wiring wiring a square d 9013 square d pressure switch wiring square d pressure switch wiring wiring a square d 9013 power pressure switch schneider electric air pressor pressure switch wiring diagram wiring square d air compressor pressure switch wiring diagram wiring diagramsair pressor pressure switch wiring diagram 15 compressor pressure switch wiring wiring diagram gallery compressor pressure switch wiring pressure switch for air compressor youtube tutorial pumptrol install your pumptrol pressure switch tutorial pumptrol install your pumptrol pressure switch telemecaniquesensors loading unsubscribe from telemecaniquesensors cancel unsubscribe working subscribe subscribed

















