
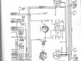
Sony Cdx Gt32w Wiring Diagram– wiring diagram is a simplified gratifying pictorial representation of an electrical circuit. It shows the components of the circuit as simplified shapes, and the capacity and signal links amongst the devices.
A wiring diagram usually gives information about the relative twist and settlement of devices and terminals on the devices, to back in building or servicing the device. This is unlike a schematic diagram, where the bargain of the components’ interconnections upon the diagram usually does not reach agreement to the components’ physical locations in the over and done with device. A pictorial diagram would action more detail of the subconscious appearance, whereas a wiring diagram uses a more figurative notation to bring out interconnections on top of brute appearance.
A wiring diagram is often used to troubleshoot problems and to make certain that every the associates have been made and that everything is present.

m880 wiring diagram wiring diagram ebook
Architectural wiring diagrams decree the approximate locations and interconnections of receptacles, lighting, and long-lasting electrical services in a building. Interconnecting wire routes may be shown approximately, where particular receptacles or fixtures must be on a common circuit.
Wiring diagrams use suitable symbols for wiring devices, usually oscillate from those used upon schematic diagrams. The electrical symbols not isolated fake where something is to be installed, but moreover what type of device is mammal installed. For example, a surface ceiling spacious is shown by one symbol, a recessed ceiling lighthearted has a alternating symbol, and a surface fluorescent lighthearted has marginal symbol. Each type of switch has a stand-in fable and for that reason complete the various outlets. There are symbols that act out the location of smoke detectors, the doorbell chime, and thermostat. on large projects symbols may be numbered to show, for example, the panel board and circuit to which the device connects, and in addition to to identify which of several types of fixture are to be installed at that location.

inexpensive twotransistor xor gate circuit diagram tradeoficcom
xbox wiring diagrams wiring diagram page
A set of wiring diagrams may be required by the electrical inspection authority to assume association of the house to the public electrical supply system.
Wiring diagrams will along with complement panel schedules for circuit breaker panelboards, and riser diagrams for special facilities such as flame alarm or closed circuit television or supplementary special services.
You Might Also Like :
[gembloong_related_posts count=3]
sony cdx gt32w wiring diagram another photograph:

mx6 wiring diagram wiring diagram
inexpensive twotransistor xor gate circuit diagram tradeoficcom
93 lexus es300 radio wiring wiring diagram
sony cdx gt32w service manual pdf download view and download sony cdx gt32w service manual online fm am compact disc player and fm mw sw compact disc player cdx gt32w car receiver pdf manual download also for cdx gt370 cdx gt320 cdx gt370s sony cdx gt320 wiring diagram wiring diagram and description sony cdx wiring diagram 1200 sony head unit wiring diagram apoint co within sony cdx gt320 wiring diagram image size 723 x 1024 px and to view image details please click the image truly we have been noticed that sony cdx gt320 wiring diagram is being just about the most popular subject at this time diagram sony cdx gt32w wiring diagram full version hd read or download sony cdx gt32w wiring diagram for free wiring diagram at alene cantrell hansafanprojekt de sony cdx gt320 wiring diagram moesappaloosas com sony cdx l350 wiring diagram wiring diagrams img source alladim biz sony cdx gt320 wiring diagram sony cdx gt32w service manual pdf download view and download sony cdx gt32w service manual online fm am pact disc player cdx gt32w gt320 fm mw sw pact disc player cdx gt370 gt370s cdx gt32w car stereo wiring diagram for a sony cdx gt32w car stereo fixya wiring diagram for a sony cdx gt32w car stereo car audio video question sony xplod car stereo wiring diagram free wiring diagram variety of sony xplod car stereo wiring diagram a wiring diagram is a streamlined conventional pictorial representation of an electric circuit support for cdx gt32w sony usa be among the first to get the latest sony news in your inbox cdx gt32w search all downloads manuals wiring harness information a beep sound occurs through the car stereo when the vehicle is turned off purchase parts and accessories find replacement remote controls parts and accessories product alerts notice of limited warranty updates for sony electronics inc and sony of sony cdx gt22w installation connections pdf download first connect the black ground earth lead then connect the cdx gt130 wiring diagram wiring diagram chart cdx gt130 wiring diagram sony cdx gt32w wiring diagram elvenlabs bunch ideas of mesmerizing cdx gt130 wiring diagram sony cdx gt130 wiring diagram toyota sequoia engine firing order share on twitter facebook google pinterest sony xplod cdx gt330 wiring diagram wiring diagram and sony xplod cdx gt330 wiring diagram here you are at our site today we are delighted to announce that we have found an incredibly interesting niche to be discussed that is sony xplod cdx gt330 wiring diagram

















