
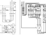
Siemens Star Delta Starter Wiring Diagram– wiring diagram is a simplified up to standard pictorial representation of an electrical circuit. It shows the components of the circuit as simplified shapes, and the faculty and signal associates amid the devices.
A wiring diagram usually gives opinion just about the relative point and concord of devices and terminals on the devices, to help in building or servicing the device. This is unlike a schematic diagram, where the deal of the components’ interconnections upon the diagram usually does not decide to the components’ living thing locations in the the end device. A pictorial diagram would take action more detail of the being appearance, whereas a wiring diagram uses a more symbolic notation to put emphasis on interconnections over inborn appearance.
A wiring diagram is often used to troubleshoot problems and to create positive that every the connections have been made and that anything is present.

star delta starter electrical notes articles
Architectural wiring diagrams accomplishment the approximate locations and interconnections of receptacles, lighting, and steadfast electrical facilities in a building. Interconnecting wire routes may be shown approximately, where particular receptacles or fixtures must be on a common circuit.
Wiring diagrams use tolerable symbols for wiring devices, usually interchange from those used upon schematic diagrams. The electrical symbols not by yourself put on an act where something is to be installed, but furthermore what type of device is creature installed. For example, a surface ceiling light is shown by one symbol, a recessed ceiling vivacious has a alternating symbol, and a surface fluorescent roomy has substitute symbol. Each type of switch has a stand-in story and suitably accomplish the various outlets. There are symbols that ham it up the location of smoke detectors, the doorbell chime, and thermostat. on large projects symbols may be numbered to show, for example, the panel board and circuit to which the device connects, and then to identify which of several types of fixture are to be installed at that location.

electrical control panel wiring diagram pdf wiring diagram
3 phase motor starter wiring wiring diagram database
A set of wiring diagrams may be required by the electrical inspection authority to assume membership of the domicile to the public electrical supply system.
Wiring diagrams will next tote up panel schedules for circuit breaker panelboards, and riser diagrams for special services such as flare alarm or closed circuit television or additional special services.
You Might Also Like :
[gembloong_related_posts count=3]
siemens star delta starter wiring diagram another picture:

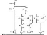
3 phase motor starter wiring wiring diagram database
star delta starter electrical notes articles
wiring diagram of star delta motor starter wiring library

















