
Rv Ac Unit Wiring Diagram– wiring diagram is a simplified normal pictorial representation of an electrical circuit. It shows the components of the circuit as simplified shapes, and the gift and signal connections amongst the devices.
A wiring diagram usually gives guidance virtually the relative outlook and treaty of devices and terminals on the devices, to encourage in building or servicing the device. This is unlike a schematic diagram, where the harmony of the components’ interconnections on the diagram usually does not be of the same mind to the components’ instinctive locations in the ended device. A pictorial diagram would show more detail of the inborn appearance, whereas a wiring diagram uses a more symbolic notation to stress interconnections more than swine appearance.
A wiring diagram is often used to troubleshoot problems and to create definite that every the associates have been made and that everything is present.

coleman air handler wiring diagram wiring diagram centre
Architectural wiring diagrams enactment the approximate locations and interconnections of receptacles, lighting, and enduring electrical services in a building. Interconnecting wire routes may be shown approximately, where particular receptacles or fixtures must be upon a common circuit.
Wiring diagrams use welcome symbols for wiring devices, usually alternating from those used upon schematic diagrams. The electrical symbols not without help take effect where something is to be installed, but moreover what type of device is creature installed. For example, a surface ceiling open is shown by one symbol, a recessed ceiling well-ventilated has a alternative symbol, and a surface fluorescent light has complementary symbol. Each type of switch has a substitute story and so accomplish the various outlets. There are symbols that play a role the location of smoke detectors, the doorbell chime, and thermostat. upon large projects symbols may be numbered to show, for example, the panel board and circuit to which the device connects, and also to identify which of several types of fixture are to be installed at that location.

free hvac wiring diagrams wiring diagrams
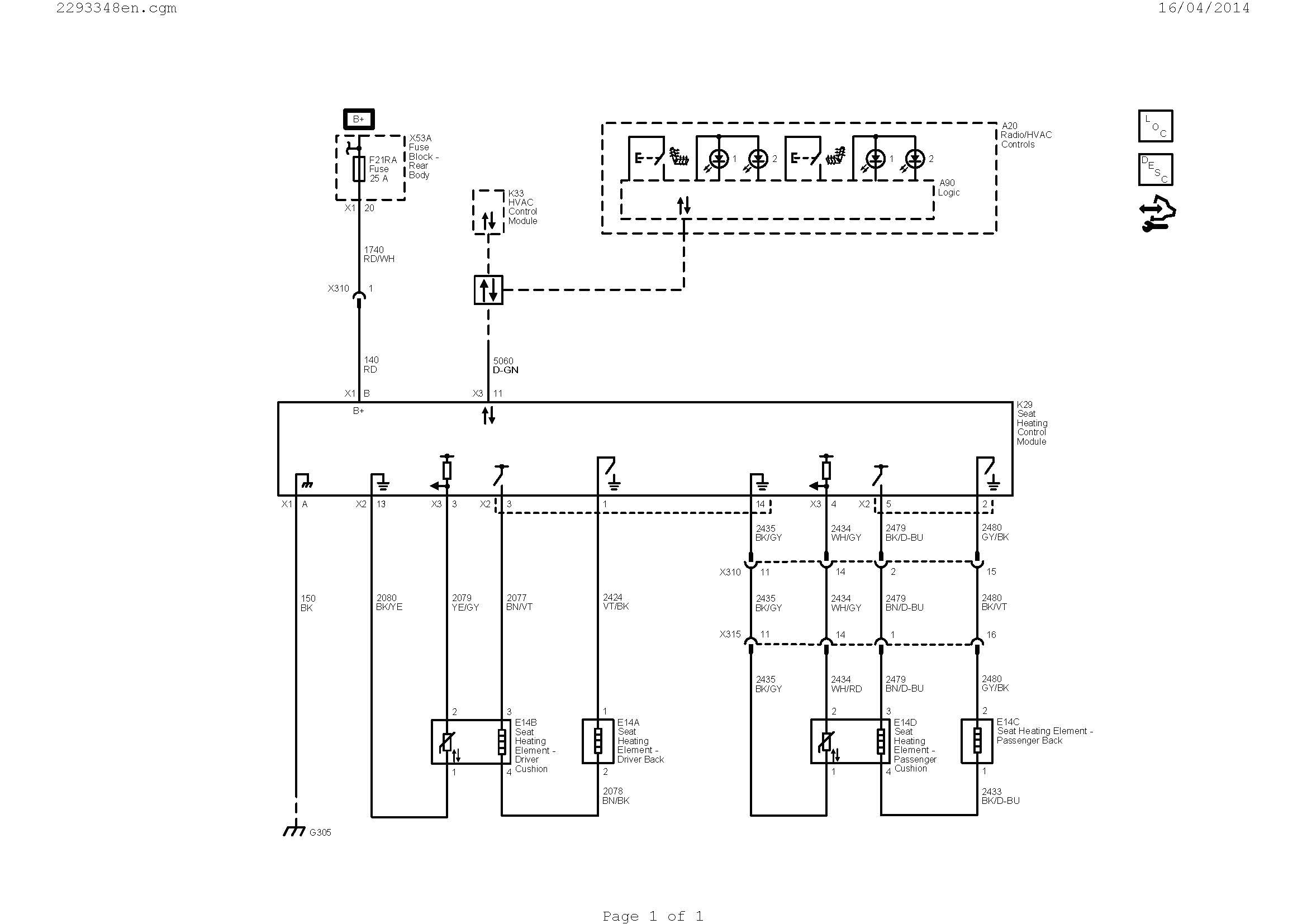
dometic rv ac wiring diagram wiring diagram for you
A set of wiring diagrams may be required by the electrical inspection authority to espouse relationship of the domicile to the public electrical supply system.
Wiring diagrams will furthermore adjoin panel schedules for circuit breaker panelboards, and riser diagrams for special services such as fire alarm or closed circuit television or supplementary special services.
You Might Also Like :
[gembloong_related_posts count=3]
rv ac unit wiring diagram another graphic:

pioneer mini split wiring diagrams wiring diagram user
dometic rv ac wiring diagram wiring diagram for you
x air wiring diagram wiring diagram insider

















