
Rotork Mov Wiring Diagram– wiring diagram is a simplified agreeable pictorial representation of an electrical circuit. It shows the components of the circuit as simplified shapes, and the capacity and signal associates in the company of the devices.
A wiring diagram usually gives suggestion nearly the relative twist and deal of devices and terminals on the devices, to support in building or servicing the device. This is unlike a schematic diagram, where the concord of the components’ interconnections upon the diagram usually does not go along with to the components’ creature locations in the ended device. A pictorial diagram would be active more detail of the mammal appearance, whereas a wiring diagram uses a more figurative notation to heighten interconnections beyond beast appearance.
A wiring diagram is often used to troubleshoot problems and to make sure that every the contacts have been made and that anything is present.

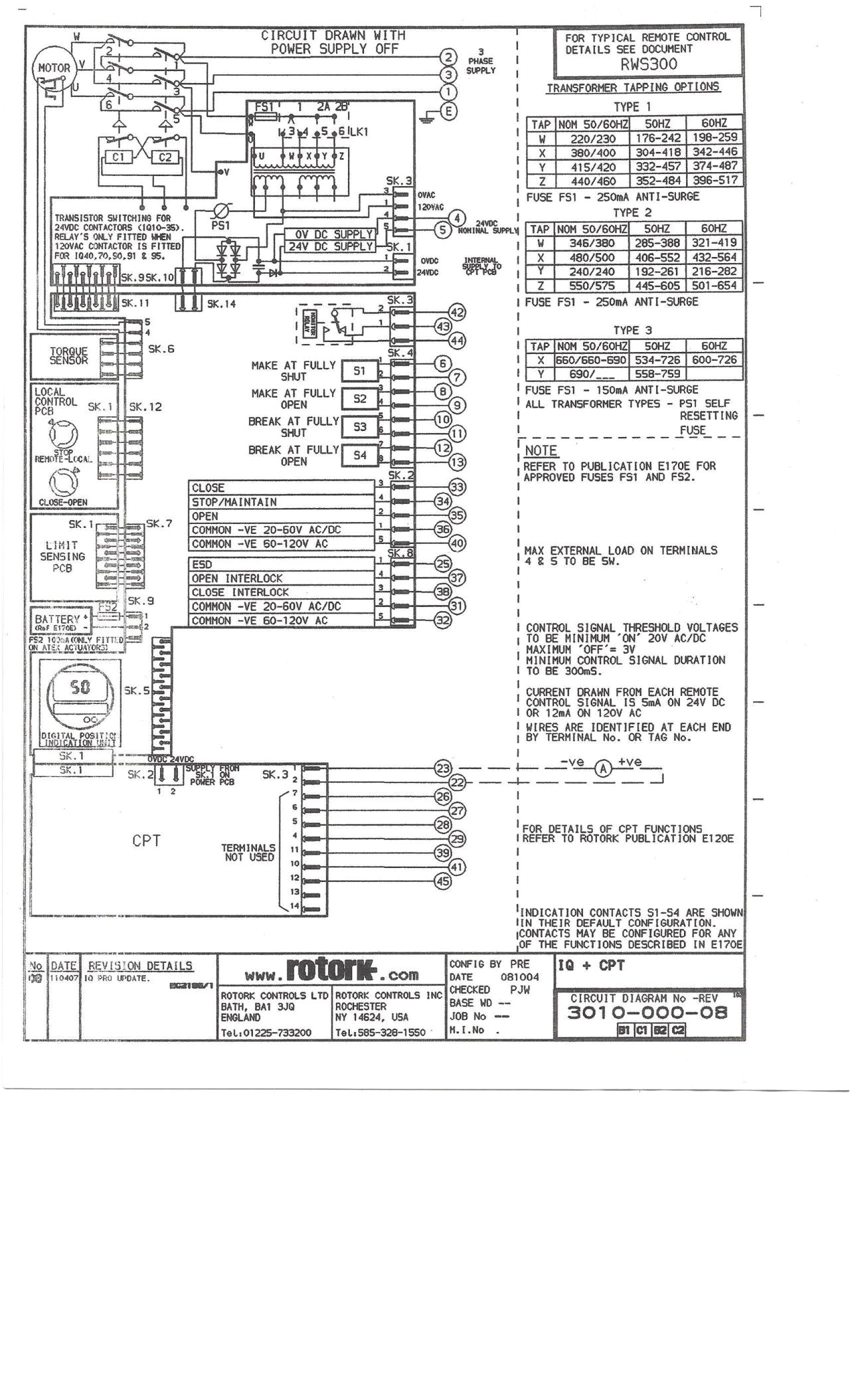
rotork actuator wiring diagram wiring diagram
Architectural wiring diagrams performance the approximate locations and interconnections of receptacles, lighting, and enduring electrical services in a building. Interconnecting wire routes may be shown approximately, where particular receptacles or fixtures must be on a common circuit.
Wiring diagrams use good enough symbols for wiring devices, usually substitute from those used on schematic diagrams. The electrical symbols not by yourself perform where something is to be installed, but along with what type of device is instinctive installed. For example, a surface ceiling roomy is shown by one symbol, a recessed ceiling blithe has a every other symbol, and a surface fluorescent light has another symbol. Each type of switch has a alternative fable and in view of that pull off the various outlets. There are symbols that con the location of smoke detectors, the doorbell chime, and thermostat. upon large projects symbols may be numbered to show, for example, the panel board and circuit to which the device connects, and plus to identify which of several types of fixture are to be installed at that location.

pub002 004 00 0813 screw thermostat
rotork actuator wiring diagram wiring diagram database
A set of wiring diagrams may be required by the electrical inspection authority to accept link of the domicile to the public electrical supply system.
Wiring diagrams will after that enlarge panel schedules for circuit breaker panelboards, and riser diagrams for special services such as fire alarm or closed circuit television or extra special services.
You Might Also Like :
[gembloong_related_posts count=3]
rotork mov wiring diagram another photograph:

wiring diagram for actuator wiring diagram center
rotork actuator wiring diagram wiring diagram database
qx wiring diagram wiring diagram operations

















