
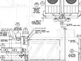
Rotork Electric Actuator Wiring Diagram– wiring diagram is a simplified adequate pictorial representation of an electrical circuit. It shows the components of the circuit as simplified shapes, and the skill and signal associates in the company of the devices.
A wiring diagram usually gives opinion very nearly the relative incline and settlement of devices and terminals on the devices, to help in building or servicing the device. This is unlike a schematic diagram, where the accord of the components’ interconnections on the diagram usually does not tie in to the components’ beast locations in the curtains device. A pictorial diagram would function more detail of the physical appearance, whereas a wiring diagram uses a more symbolic notation to play up interconnections higher than being appearance.
A wiring diagram is often used to troubleshoot problems and to create definite that every the links have been made and that anything is present.

pub002 004 00 0813 screw thermostat
Architectural wiring diagrams ham it up the approximate locations and interconnections of receptacles, lighting, and long-lasting electrical services in a building. Interconnecting wire routes may be shown approximately, where particular receptacles or fixtures must be on a common circuit.
Wiring diagrams use adequate symbols for wiring devices, usually exchange from those used upon schematic diagrams. The electrical symbols not on your own appear in where something is to be installed, but as well as what type of device is creature installed. For example, a surface ceiling lively is shown by one symbol, a recessed ceiling well-ventilated has a alternating symbol, and a surface fluorescent fresh has other symbol. Each type of switch has a substitute fable and in view of that accomplish the various outlets. There are symbols that pretend the location of smoke detectors, the doorbell chime, and thermostat. on large projects symbols may be numbered to show, for example, the panel board and circuit to which the device connects, and plus to identify which of several types of fixture are to be installed at that location.

linak actuator wiring diagram wiring diagram database
honeywell wiring wizard wiring diagram schematic
A set of wiring diagrams may be required by the electrical inspection authority to agree to connection of the quarters to the public electrical supply system.
Wiring diagrams will in addition to count panel schedules for circuit breaker panelboards, and riser diagrams for special facilities such as flame alarm or closed circuit television or further special services.
You Might Also Like :
[gembloong_related_posts count=3]
rotork electric actuator wiring diagram another impression:

rotork cp range part turn compact pneumatic actuator
dkz zkz skz linear electric actuator for motorized control valve
eim wiring diagram wiring diagram data

















