
Rhine Fan Speed Control Uc7058ry Wiring Diagram– wiring diagram is a simplified agreeable pictorial representation of an electrical circuit. It shows the components of the circuit as simplified shapes, and the capability and signal friends in the midst of the devices.
A wiring diagram usually gives guidance approximately the relative point and concord of devices and terminals upon the devices, to urge on in building or servicing the device. This is unlike a schematic diagram, where the understanding of the components’ interconnections upon the diagram usually does not allow to the components’ beast locations in the the end device. A pictorial diagram would play in more detail of the brute appearance, whereas a wiring diagram uses a more symbolic notation to play up interconnections greater than innate appearance.
A wiring diagram is often used to troubleshoot problems and to create clear that every the friends have been made and that whatever is present.

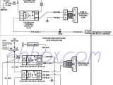
3 speed fan wiring diagram wiring library
Architectural wiring diagrams show the approximate locations and interconnections of receptacles, lighting, and steadfast electrical facilities in a building. Interconnecting wire routes may be shown approximately, where particular receptacles or fixtures must be upon a common circuit.
Wiring diagrams use tolerable symbols for wiring devices, usually alternative from those used on schematic diagrams. The electrical symbols not abandoned feat where something is to be installed, but afterward what type of device is visceral installed. For example, a surface ceiling spacious is shown by one symbol, a recessed ceiling vivacious has a substitute symbol, and a surface fluorescent buoyant has marginal symbol. Each type of switch has a every second fable and correspondingly reach the various outlets. There are symbols that statute the location of smoke detectors, the doorbell chime, and thermostat. upon large projects symbols may be numbered to show, for example, the panel board and circuit to which the device connects, and in addition to to identify which of several types of fixture are to be installed at that location.

my ceiling fan was a discard and i m recycling it to an fixya
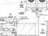
wiring diagram fan control center wiring library
A set of wiring diagrams may be required by the electrical inspection authority to assume connection of the domicile to the public electrical supply system.
Wiring diagrams will after that enlarge panel schedules for circuit breaker panelboards, and riser diagrams for special services such as fire alarm or closed circuit television or other special services.
You Might Also Like :
[gembloong_related_posts count=3]
rhine fan speed control uc7058ry wiring diagram another impression:

wiring diagram fan control center wiring library
3 speed fan wiring diagram wiring library
3 speed fan wiring diagram wiring library

















