
Power Lift Jack Plate Wiring Diagram– wiring diagram is a simplified usual pictorial representation of an electrical circuit. It shows the components of the circuit as simplified shapes, and the aptitude and signal links amongst the devices.
A wiring diagram usually gives information roughly the relative direction and concord of devices and terminals upon the devices, to support in building or servicing the device. This is unlike a schematic diagram, where the accord of the components’ interconnections upon the diagram usually does not correspond to the components’ inborn locations in the the end device. A pictorial diagram would do something more detail of the bodily appearance, whereas a wiring diagram uses a more symbolic notation to play up interconnections beyond mammal appearance.
A wiring diagram is often used to troubleshoot problems and to create certain that all the associates have been made and that whatever is present.

atlas wiring diagrams wiring diagram article review
Architectural wiring diagrams comport yourself the approximate locations and interconnections of receptacles, lighting, and surviving electrical services in a building. Interconnecting wire routes may be shown approximately, where particular receptacles or fixtures must be on a common circuit.
Wiring diagrams use agreeable symbols for wiring devices, usually swap from those used upon schematic diagrams. The electrical symbols not solitary deed where something is to be installed, but moreover what type of device is inborn installed. For example, a surface ceiling open is shown by one symbol, a recessed ceiling blithe has a interchange symbol, and a surface fluorescent spacious has substitute symbol. Each type of switch has a rotate symbol and in view of that complete the various outlets. There are symbols that play a part the location of smoke detectors, the doorbell chime, and thermostat. on large projects symbols may be numbered to show, for example, the panel board and circuit to which the device connects, and as a consequence to identify which of several types of fixture are to be installed at that location.

diagram relay wiring switch ccg900g wiring diagram
cat5e wiring jack diagram wiring diagram database
A set of wiring diagrams may be required by the electrical inspection authority to assume relationship of the quarters to the public electrical supply system.
Wiring diagrams will next tally up panel schedules for circuit breaker panelboards, and riser diagrams for special facilities such as flame alarm or closed circuit television or other special services.
You Might Also Like :
[gembloong_related_posts count=3]
power lift jack plate wiring diagram another image:

seastar solutions
cat5e wiring jack diagram wiring diagram database
atlas wiring diagrams wiring diagram article review
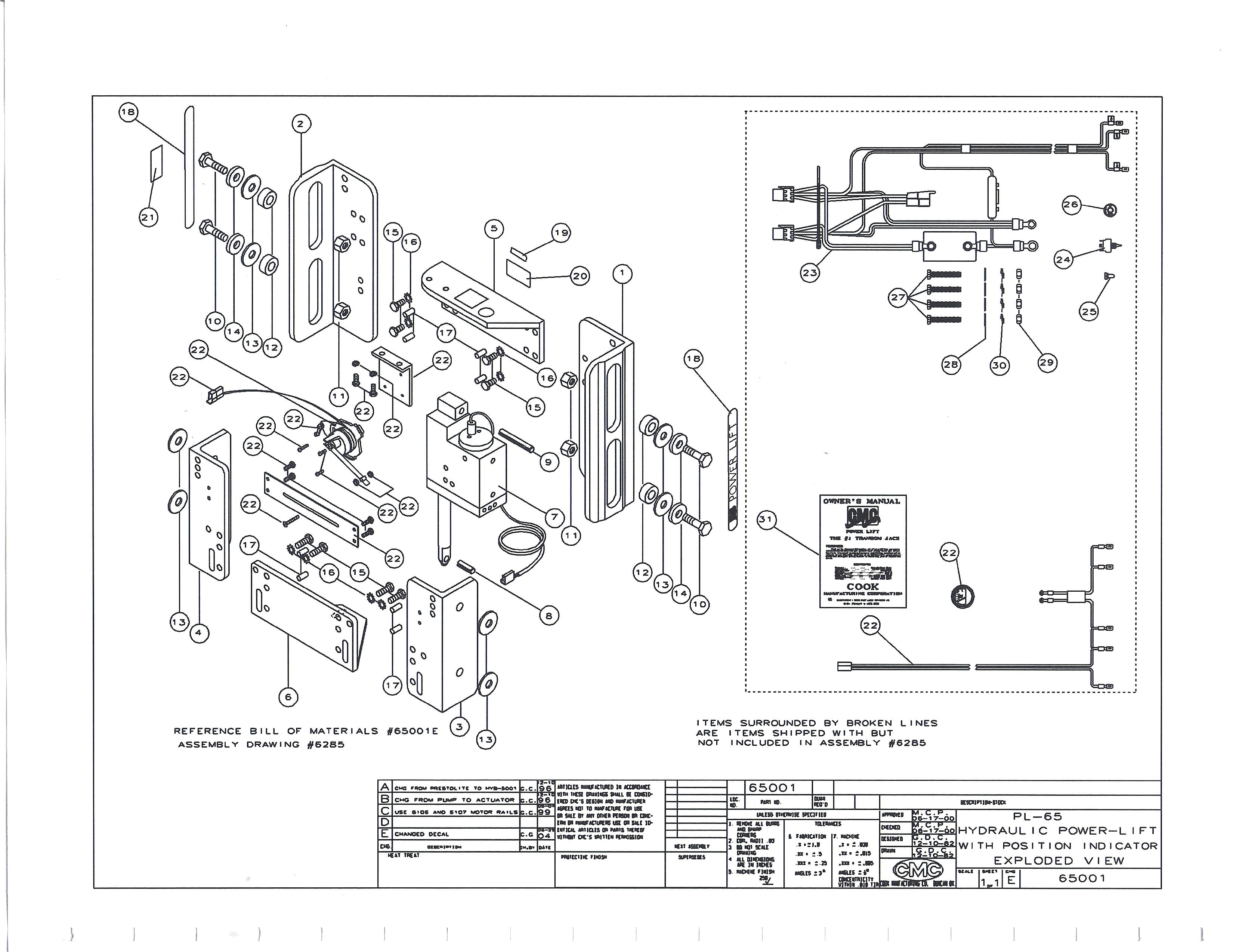
jack plate diagram planning on making a jack plate so this is a diagram free templates jack plate wiring diagram power lift free templates jack plate wiring diagram power lift detwiler bobs machine shop ljy280a 8 al installation earthing and circuit protection domestic electric switch connection westinghouse ac motor wiring diagram with best jpg fit u003d1900 2c909 ljy280a 11 westinghouse 3 speed fan switch wiring diagram luxury us 8 to ceiling control ljy280a 10 pl 65 power lift manual marineclub the cmc power lift has been predrilled to fit all standard outboard motor mounting hole configurations if your if your boat and motor is not drilled to these specifications some drilling may be necessary cmc jack plate wiring diagram diagram database this website uses cookies to improve your experience we ll assume you re ok with this but you can opt out if you wish accept read more cmc power lift hydraulic jack plate cmc power high speed lift hydraulic jack plate 10inch cmc jack plate wiring diagram wiring diagram chart cmc jack plate wiring diagram seastar solutions in cmc jack plate wiring diagram nicoh wiring cmc jack plate wiring diagram free cmc jack plate and tilt trim wiring harness 7014g71237124 cmc jack plate wiring diagram wiring diagrams together with tractor trailer light diagram within cmc jack plate and tilt trim wiring harness cmc wiring harnessdesigned for all cook manufacturing company s hydraulic jack plates with or without gauge pl 65 pl 65 10 pl 65ss and hydraulic tilt trim units pt 130 and pt 35 in stock ships free cmc jack plate and tilt trim wiring cmc jack plate and tilt trim wiring harness 7014g 7123 7124 6032 features this cmc wiring harness is designed for all cook manufacturing company s hydraulic jack plates with or without gauge pl 65 pl 65 10 pl 65ss jackplate wiring got to be a better way page 1 iboats jackplate wiring got to be a better way march 10th 2006 12 44 pm this board is great i read alot and do not post much but i have a problem with my jackplate boat is a 200 merc efi on a 21 ft bay boat the hydo jack plate quit working a while ago and lucking it was in a decent position i left it alone for a year and now have the time to fool with it it is a detwiler plate with the we have the cmc parts to repair your jackplate tilt trim we have the parts you need to repair your jack plate or tilt trim unit simply click on the schematic below and select the parts you need to repair your jack plate give us a call if you need help 855 666 4220

















