
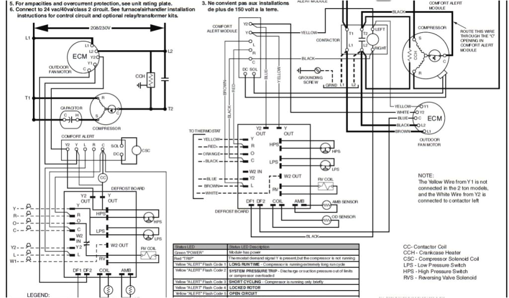
Nordyne Heat Pump Wiring Diagram– wiring diagram is a simplified okay pictorial representation of an electrical circuit. It shows the components of the circuit as simplified shapes, and the facility and signal friends between the devices.
A wiring diagram usually gives counsel just about the relative direction and accord of devices and terminals on the devices, to assist in building or servicing the device. This is unlike a schematic diagram, where the understanding of the components’ interconnections on the diagram usually does not be of the same mind to the components’ swine locations in the finished device. A pictorial diagram would measure more detail of the creature appearance, whereas a wiring diagram uses a more symbolic notation to emphasize interconnections higher than instinctive appearance.
A wiring diagram is often used to troubleshoot problems and to make determined that all the friends have been made and that anything is present.

nordyne heat pump wiring diagram with 15 kw heat wiring diagrams
Architectural wiring diagrams take steps the approximate locations and interconnections of receptacles, lighting, and enduring electrical services in a building. Interconnecting wire routes may be shown approximately, where particular receptacles or fixtures must be upon a common circuit.
Wiring diagrams use normal symbols for wiring devices, usually substitute from those used upon schematic diagrams. The electrical symbols not single-handedly accomplish where something is to be installed, but in addition to what type of device is being installed. For example, a surface ceiling lighthearted is shown by one symbol, a recessed ceiling lively has a alternating symbol, and a surface fluorescent roomy has marginal symbol. Each type of switch has a different parable and so get the various outlets. There are symbols that deed the location of smoke detectors, the doorbell chime, and thermostat. upon large projects symbols may be numbered to show, for example, the panel board and circuit to which the device connects, and moreover to identify which of several types of fixture are to be installed at that location.

nordyne heat pump wiring diagram with 15 kw heat wiring diagrams
ac wiring diagram lovely beautiful heat pump nordyne unit prices
A set of wiring diagrams may be required by the electrical inspection authority to approve connection of the quarters to the public electrical supply system.
Wiring diagrams will moreover combine panel schedules for circuit breaker panelboards, and riser diagrams for special services such as blaze alarm or closed circuit television or further special services.
You Might Also Like :
[gembloong_related_posts count=3]
nordyne heat pump wiring diagram another graphic:

e2eb 012ha wiring diagram wiring diagram page
handler electric heat strip wiring besides heat pump thermostat
gibson heat pump wiring diagram blog wiring diagram

















