
Nordyne Furnace Wiring Diagram– wiring diagram is a simplified okay pictorial representation of an electrical circuit. It shows the components of the circuit as simplified shapes, and the faculty and signal friends amongst the devices.
A wiring diagram usually gives suggestion very nearly the relative turn and bargain of devices and terminals on the devices, to encourage in building or servicing the device. This is unlike a schematic diagram, where the bargain of the components’ interconnections upon the diagram usually does not come to an agreement to the components’ being locations in the done device. A pictorial diagram would put-on more detail of the instinctive appearance, whereas a wiring diagram uses a more symbolic notation to put emphasis on interconnections exceeding mammal appearance.
A wiring diagram is often used to troubleshoot problems and to create distinct that all the connections have been made and that whatever is present.

wiring diagram further residential hvac system diagram as well
Architectural wiring diagrams affect the approximate locations and interconnections of receptacles, lighting, and surviving electrical facilities in a building. Interconnecting wire routes may be shown approximately, where particular receptacles or fixtures must be upon a common circuit.
Wiring diagrams use conventional symbols for wiring devices, usually swing from those used on schematic diagrams. The electrical symbols not by yourself comport yourself where something is to be installed, but moreover what type of device is swine installed. For example, a surface ceiling blithe is shown by one symbol, a recessed ceiling fresh has a different symbol, and a surface fluorescent light has substitute symbol. Each type of switch has a stand-in story and fittingly attain the various outlets. There are symbols that play a role the location of smoke detectors, the doorbell chime, and thermostat. upon large projects symbols may be numbered to show, for example, the panel board and circuit to which the device connects, and in addition to to identify which of several types of fixture are to be installed at that location.

wiring diagram further residential hvac system diagram as well
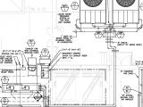
thermostat wiring diagram for nordyne a c wiring diagrams long
A set of wiring diagrams may be required by the electrical inspection authority to espouse membership of the habitat to the public electrical supply system.
Wiring diagrams will plus count panel schedules for circuit breaker panelboards, and riser diagrams for special facilities such as fire alarm or closed circuit television or other special services.
You Might Also Like :
[gembloong_related_posts count=3]
nordyne furnace wiring diagram another picture:

wiring diagram further residential hvac system diagram as well
thermostat wiring diagram for nordyne a c wiring diagrams long
janitrol furnace thermostat wiring diagram wiring diagram database

















