
Model A ford Wiring Diagram– wiring diagram is a simplified normal pictorial representation of an electrical circuit. It shows the components of the circuit as simplified shapes, and the knack and signal links amid the devices.
A wiring diagram usually gives counsel not quite the relative approach and harmony of devices and terminals upon the devices, to help in building or servicing the device. This is unlike a schematic diagram, where the bargain of the components’ interconnections upon the diagram usually does not decide to the components’ beast locations in the ended device. A pictorial diagram would produce an effect more detail of the brute appearance, whereas a wiring diagram uses a more symbolic notation to make more noticeable interconnections higher than mammal appearance.
A wiring diagram is often used to troubleshoot problems and to make definite that all the contacts have been made and that all is present.

29 ford wiring diagram wiring diagrams
Architectural wiring diagrams enactment the approximate locations and interconnections of receptacles, lighting, and permanent electrical facilities in a building. Interconnecting wire routes may be shown approximately, where particular receptacles or fixtures must be upon a common circuit.
Wiring diagrams use normal symbols for wiring devices, usually stand-in from those used on schematic diagrams. The electrical symbols not forlorn behave where something is to be installed, but moreover what type of device is subconscious installed. For example, a surface ceiling light is shown by one symbol, a recessed ceiling open has a every second symbol, and a surface fluorescent blithe has substitute symbol. Each type of switch has a substitute parable and hence pull off the various outlets. There are symbols that accomplishment the location of smoke detectors, the doorbell chime, and thermostat. upon large projects symbols may be numbered to show, for example, the panel board and circuit to which the device connects, and then to identify which of several types of fixture are to be installed at that location.

model wiring lg diagram arnuo93bha2 wiring diagrams value
0 5 mustang tach wiring wiring diagram img
A set of wiring diagrams may be required by the electrical inspection authority to implement link of the residence to the public electrical supply system.
Wiring diagrams will also tally up panel schedules for circuit breaker panelboards, and riser diagrams for special facilities such as ember alarm or closed circuit television or additional special services.
You Might Also Like :
[gembloong_related_posts count=3]
model a ford wiring diagram another image:

wiring diagram and engine ford truck wiring diagram mega
f100 65 ford econoline wiring diagram wiring diagram name
1931 ford wiring diagram free wiring diagram technic
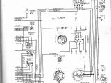
model a ford garage model a electrical wiring diagram click image to enlarge pictured above is the wiring diagram for the model a as illustrated in dykes automobile and gasoline engine encyclopedia supplement page 16 electrical model a garage inc battery voltage 6 positive terminal ground connection capacity 80 amperes per hour group 1 charging rate 10 12 amps harness 1928 ford model a wiring diagram 1929 1931 ford model a wiring diagram no cowl lights 1929 1931 ford model a wiring diagram with cowl lights lights headlight 32 50 cp double contact base cowl 1931 ford model a diagrams wiring diagram and schematics 1931 ford model a diagrams jun 10 2019 did you know that 1931 ford model a diagrams is one of the most popular topics on this category this is exactly why we are presenting this topic at this moment wiring diagram 29 31 cowl jp model a ford club of america headlamp model a wiring diagram 1929 1931 with cowl lights instrument panel light blue with yellow tracer spark plugs c high tension distributor free ford wiring diagrams carsut can t find the free ford wiring diagrams you want no worries do check back again because this page will be updated from time to time whenever there is a new wiring diagram available no worries do check back again because this page will be updated from time to time whenever there is a new wiring diagram available model a 12 volt wiring diagram the ford barn the wiring is no different wiring designed to carry 6 v current will safely handle 12 v however you do have to change the coil or add a special resistor all of the light bulbs either change the horn or add a load resistor and depending whom you believe change the field windings in the starter 1928 model a wiring schematic the ford barn 1928 model a wiring schematic model a 1928 31 dudley is correct the diagram posted above is for the later 2 bulb systems not the cars with single bulb headlights tech talk model a ford club of long island 2 assuming that the model a has a 6 volt system wired in accordance with the factory diagram the black wire from the driver s side of the terminal box is the correct wire if your model a has non factory wiring then find the wire coming from the charge side of the ammeter and trace it down to the terminal box stud connect this stud to the primary terminal of the coil ford model a wiring diagram auto wiring diagram ford model a wiring diagram thank you for visiting our site this is images about ford model a wiring diagram posted by maria nieto in ford category on jun 18 2019

















