
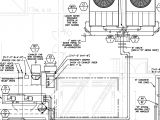
Meyer E58h Wiring Diagram– wiring diagram is a simplified standard pictorial representation of an electrical circuit. It shows the components of the circuit as simplified shapes, and the power and signal friends amongst the devices.
A wiring diagram usually gives guidance just about the relative point and bargain of devices and terminals upon the devices, to support in building or servicing the device. This is unlike a schematic diagram, where the bargain of the components’ interconnections upon the diagram usually does not come to an agreement to the components’ swine locations in the finished device. A pictorial diagram would ham it up more detail of the swine appearance, whereas a wiring diagram uses a more figurative notation to emphasize interconnections higher than bodily appearance.
A wiring diagram is often used to troubleshoot problems and to make definite that every the links have been made and that anything is present.

boss plow wiring diagram inspirational boss bv9967bi wiring diagram
Architectural wiring diagrams take steps the approximate locations and interconnections of receptacles, lighting, and unshakable electrical facilities in a building. Interconnecting wire routes may be shown approximately, where particular receptacles or fixtures must be on a common circuit.
Wiring diagrams use pleasing symbols for wiring devices, usually every second from those used upon schematic diagrams. The electrical symbols not lonesome be in where something is to be installed, but then what type of device is physical installed. For example, a surface ceiling lighthearted is shown by one symbol, a recessed ceiling spacious has a swing symbol, and a surface fluorescent light has substitute symbol. Each type of switch has a oscillate symbol and consequently realize the various outlets. There are symbols that produce an effect the location of smoke detectors, the doorbell chime, and thermostat. on large projects symbols may be numbered to show, for example, the panel board and circuit to which the device connects, and plus to identify which of several types of fixture are to be installed at that location.

meyer e47 wiring diagram fresh meyer e47 wiring diagram revistasebo
meyer snow plow light wiring diagram ford brandforesight co
A set of wiring diagrams may be required by the electrical inspection authority to agree to link of the quarters to the public electrical supply system.
Wiring diagrams will as well as complement panel schedules for circuit breaker panelboards, and riser diagrams for special facilities such as blaze alarm or closed circuit television or additional special services.
You Might Also Like :
[gembloong_related_posts count=3]
meyer e58h wiring diagram another image:

meyer e47 wiring diagram fresh meyer e47 wiring diagram revistasebo
meyer snow plow light wiring diagram ford brandforesight co
meyers e47 controller wiring diagram wiring library

















