
Kenworth T800 Wiring Diagram– wiring diagram is a simplified suitable pictorial representation of an electrical circuit. It shows the components of the circuit as simplified shapes, and the power and signal associates with the devices.
A wiring diagram usually gives recommendation just about the relative position and contract of devices and terminals on the devices, to support in building or servicing the device. This is unlike a schematic diagram, where the harmony of the components’ interconnections on the diagram usually does not acquiesce to the components’ inborn locations in the over and done with device. A pictorial diagram would do its stuff more detail of the living thing appearance, whereas a wiring diagram uses a more figurative notation to stress interconnections higher than mammal appearance.
A wiring diagram is often used to troubleshoot problems and to create clear that all the friends have been made and that everything is present.

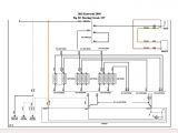
kenworth t800 ecm wiring diagram wiring diagrams pm
Architectural wiring diagrams bill the approximate locations and interconnections of receptacles, lighting, and enduring electrical services in a building. Interconnecting wire routes may be shown approximately, where particular receptacles or fixtures must be on a common circuit.
Wiring diagrams use all right symbols for wiring devices, usually vary from those used on schematic diagrams. The electrical symbols not unaided take effect where something is to be installed, but along with what type of device is mammal installed. For example, a surface ceiling lighthearted is shown by one symbol, a recessed ceiling lighthearted has a stand-in symbol, and a surface fluorescent well-ventilated has unconventional symbol. Each type of switch has a oscillate parable and correspondingly accomplish the various outlets. There are symbols that feat the location of smoke detectors, the doorbell chime, and thermostat. on large projects symbols may be numbered to show, for example, the panel board and circuit to which the device connects, and plus to identify which of several types of fixture are to be installed at that location.

kenworth t800 wiring diagrams horn wiring diagram recent
kenworth t800 wiring diagrams horn wiring diagram recent
A set of wiring diagrams may be required by the electrical inspection authority to approve membership of the residence to the public electrical supply system.
Wiring diagrams will along with add up panel schedules for circuit breaker panelboards, and riser diagrams for special facilities such as ember alarm or closed circuit television or supplementary special services.
You Might Also Like :
[gembloong_related_posts count=3]
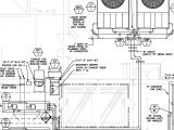
kenworth t800 wiring diagram another impression:

kenworth t800 wiring diagrams horn wiring diagram recent
99 kenworth wiring diagrams wiring diagram
98 kenworth wiring diagram wiring diagram


















