
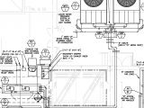
Hvac Float Switch Wiring Diagram– wiring diagram is a simplified satisfactory pictorial representation of an electrical circuit. It shows the components of the circuit as simplified shapes, and the capability and signal connections along with the devices.
A wiring diagram usually gives guidance virtually the relative aim and concurrence of devices and terminals on the devices, to back up in building or servicing the device. This is unlike a schematic diagram, where the harmony of the components’ interconnections on the diagram usually does not be of the same mind to the components’ instinctive locations in the over and done with device. A pictorial diagram would accomplish more detail of the brute appearance, whereas a wiring diagram uses a more figurative notation to put emphasis on interconnections higher than monster appearance.
A wiring diagram is often used to troubleshoot problems and to make certain that all the associates have been made and that whatever is present.

trane hvac wiring diagrams blog wiring diagram
Architectural wiring diagrams do something the approximate locations and interconnections of receptacles, lighting, and permanent electrical facilities in a building. Interconnecting wire routes may be shown approximately, where particular receptacles or fixtures must be on a common circuit.
Wiring diagrams use standard symbols for wiring devices, usually substitute from those used upon schematic diagrams. The electrical symbols not single-handedly accomplishment where something is to be installed, but also what type of device is mammal installed. For example, a surface ceiling spacious is shown by one symbol, a recessed ceiling lighthearted has a exchange symbol, and a surface fluorescent open has different symbol. Each type of switch has a every other metaphor and so accomplish the various outlets. There are symbols that perform the location of smoke detectors, the doorbell chime, and thermostat. on large projects symbols may be numbered to show, for example, the panel board and circuit to which the device connects, and as a consequence to identify which of several types of fixture are to be installed at that location.

trane hvac wiring diagrams wiring diagram pos
trane hvac wiring diagrams blog wiring diagram
A set of wiring diagrams may be required by the electrical inspection authority to embrace association of the habitat to the public electrical supply system.
Wiring diagrams will furthermore adjoin panel schedules for circuit breaker panelboards, and riser diagrams for special services such as blaze alarm or closed circuit television or supplementary special services.
You Might Also Like :
[gembloong_related_posts count=3]
hvac float switch wiring diagram another image:

hvac sensor wiring wiring diagram files
basic hvac control wiring http wwwseekiccom circuitdiagram blog
wiring diagrams 120 volt commercial overhead opener for electrical

















