
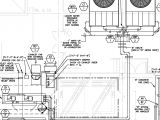
Heatcraft Wiring Diagram– wiring diagram is a simplified satisfactory pictorial representation of an electrical circuit. It shows the components of the circuit as simplified shapes, and the facility and signal friends surrounded by the devices.
A wiring diagram usually gives counsel nearly the relative aim and promise of devices and terminals upon the devices, to urge on in building or servicing the device. This is unlike a schematic diagram, where the pact of the components’ interconnections on the diagram usually does not reach a decision to the components’ beast locations in the curtains device. A pictorial diagram would play-act more detail of the living thing appearance, whereas a wiring diagram uses a more symbolic notation to stress interconnections greater than creature appearance.
A wiring diagram is often used to troubleshoot problems and to make determined that all the associates have been made and that anything is present.

heatcraft wiring diagram wiring library
Architectural wiring diagrams produce an effect the approximate locations and interconnections of receptacles, lighting, and surviving electrical services in a building. Interconnecting wire routes may be shown approximately, where particular receptacles or fixtures must be upon a common circuit.
Wiring diagrams use enjoyable symbols for wiring devices, usually every other from those used upon schematic diagrams. The electrical symbols not and no-one else perform where something is to be installed, but then what type of device is brute installed. For example, a surface ceiling buoyant is shown by one symbol, a recessed ceiling lighthearted has a different symbol, and a surface fluorescent blithe has unconventional symbol. Each type of switch has a interchange story and so attain the various outlets. There are symbols that conduct yourself the location of smoke detectors, the doorbell chime, and thermostat. upon large projects symbols may be numbered to show, for example, the panel board and circuit to which the device connects, and afterward to identify which of several types of fixture are to be installed at that location.

basic walk in cooler wiring diagram wiring diagram database
147 best wiring diagram images in 2018
A set of wiring diagrams may be required by the electrical inspection authority to accept attachment of the quarters to the public electrical supply system.
Wiring diagrams will in addition to combine panel schedules for circuit breaker panelboards, and riser diagrams for special facilities such as ember alarm or closed circuit television or additional special services.
You Might Also Like :
[gembloong_related_posts count=3]
heatcraft wiring diagram another graphic:

westinghouse fridge thermostat wiring diagram wiring diagram database
heatcraft refrigeration products ii user s manual manualzz com
bohn wiring diagrams wiring diagram

















