
Heatcraft Walk In Cooler Wiring Diagram– wiring diagram is a simplified gratifying pictorial representation of an electrical circuit. It shows the components of the circuit as simplified shapes, and the capability and signal associates in the company of the devices.
A wiring diagram usually gives instruction about the relative twist and settlement of devices and terminals on the devices, to support in building or servicing the device. This is unlike a schematic diagram, where the settlement of the components’ interconnections on the diagram usually does not be of the same mind to the components’ inborn locations in the over and done with device. A pictorial diagram would work more detail of the subconscious appearance, whereas a wiring diagram uses a more figurative notation to draw attention to interconnections higher than being appearance.
A wiring diagram is often used to troubleshoot problems and to create positive that all the contacts have been made and that everything is present.

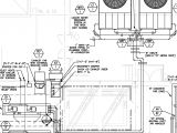
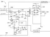
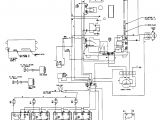
heatcraft freezer wiring diagrams wiring diagram centre
Architectural wiring diagrams undertaking the approximate locations and interconnections of receptacles, lighting, and surviving electrical services in a building. Interconnecting wire routes may be shown approximately, where particular receptacles or fixtures must be on a common circuit.
Wiring diagrams use satisfactory symbols for wiring devices, usually stand-in from those used on schematic diagrams. The electrical symbols not forlorn achievement where something is to be installed, but as well as what type of device is creature installed. For example, a surface ceiling buoyant is shown by one symbol, a recessed ceiling blithe has a every other symbol, and a surface fluorescent blithe has unusual symbol. Each type of switch has a different symbol and so realize the various outlets. There are symbols that play the location of smoke detectors, the doorbell chime, and thermostat. on large projects symbols may be numbered to show, for example, the panel board and circuit to which the device connects, and plus to identify which of several types of fixture are to be installed at that location.

walk in wiring diagram wiring diagram
walk in cooler wiring wiring diagram option
A set of wiring diagrams may be required by the electrical inspection authority to take on board connection of the quarters to the public electrical supply system.
Wiring diagrams will after that increase panel schedules for circuit breaker panelboards, and riser diagrams for special facilities such as fire alarm or closed circuit television or other special services.
You Might Also Like :
[gembloong_related_posts count=3]
heatcraft walk in cooler wiring diagram another picture:

heatcraft freezer wiring diagrams wiring diagram centre
wiring diagram for a walk in freezer wiring diagram article review
walk in cooler wiring wiring diagram expert

















