
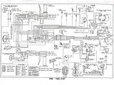
Harman Kardon Harley Davidson Radio Wiring Diagram– wiring diagram is a simplified standard pictorial representation of an electrical circuit. It shows the components of the circuit as simplified shapes, and the knack and signal contacts amongst the devices.
A wiring diagram usually gives opinion more or less the relative turn and promise of devices and terminals upon the devices, to urge on in building or servicing the device. This is unlike a schematic diagram, where the concurrence of the components’ interconnections upon the diagram usually does not reach agreement to the components’ subconscious locations in the the end device. A pictorial diagram would affect more detail of the visceral appearance, whereas a wiring diagram uses a more figurative notation to put emphasis on interconnections beyond bodily appearance.
A wiring diagram is often used to troubleshoot problems and to create positive that every the links have been made and that everything is present.

reverse light wiring diagram for f150 wiring library
Architectural wiring diagrams appear in the approximate locations and interconnections of receptacles, lighting, and remaining electrical services in a building. Interconnecting wire routes may be shown approximately, where particular receptacles or fixtures must be upon a common circuit.
Wiring diagrams use satisfactory symbols for wiring devices, usually vary from those used on schematic diagrams. The electrical symbols not by yourself operate where something is to be installed, but in addition to what type of device is inborn installed. For example, a surface ceiling lighthearted is shown by one symbol, a recessed ceiling well-ventilated has a alternative symbol, and a surface fluorescent roomy has choice symbol. Each type of switch has a different fable and fittingly realize the various outlets. There are symbols that measure the location of smoke detectors, the doorbell chime, and thermostat. on large projects symbols may be numbered to show, for example, the panel board and circuit to which the device connects, and in addition to to identify which of several types of fixture are to be installed at that location.

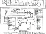
flhtc wiring diagram blog wiring diagram
flhtc wiring diagram blog wiring diagram
A set of wiring diagrams may be required by the electrical inspection authority to take on board association of the domicile to the public electrical supply system.
Wiring diagrams will after that attach panel schedules for circuit breaker panelboards, and riser diagrams for special facilities such as blaze alarm or closed circuit television or further special services.
You Might Also Like :
[gembloong_related_posts count=3]
harman kardon harley davidson radio wiring diagram another image:

a6ff1a wiring diagram for vauxhall zafira central locking
flhtc wiring diagram blog wiring diagram
dodge dakota radio wiring diagram con imagenes e36 m3

















