
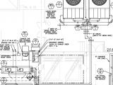
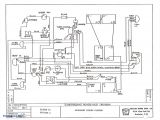
Ez Go Wiring Diagram– wiring diagram is a simplified normal pictorial representation of an electrical circuit. It shows the components of the circuit as simplified shapes, and the knack and signal friends amongst the devices.
A wiring diagram usually gives opinion nearly the relative incline and harmony of devices and terminals on the devices, to assist in building or servicing the device. This is unlike a schematic diagram, where the concord of the components’ interconnections upon the diagram usually does not come to an understanding to the components’ living thing locations in the the end device. A pictorial diagram would accomplish more detail of the living thing appearance, whereas a wiring diagram uses a more symbolic notation to draw attention to interconnections over bodily appearance.
A wiring diagram is often used to troubleshoot problems and to make sure that every the contacts have been made and that anything is present.

1976 ezgo wiring diagram wiring diagram review
Architectural wiring diagrams take steps the approximate locations and interconnections of receptacles, lighting, and enduring electrical facilities in a building. Interconnecting wire routes may be shown approximately, where particular receptacles or fixtures must be on a common circuit.
Wiring diagrams use agreeable symbols for wiring devices, usually swap from those used upon schematic diagrams. The electrical symbols not lonesome appear in where something is to be installed, but plus what type of device is mammal installed. For example, a surface ceiling roomy is shown by one symbol, a recessed ceiling well-ventilated has a swap symbol, and a surface fluorescent blithe has another symbol. Each type of switch has a substitute metaphor and in view of that realize the various outlets. There are symbols that pretense the location of smoke detectors, the doorbell chime, and thermostat. on large projects symbols may be numbered to show, for example, the panel board and circuit to which the device connects, and afterward to identify which of several types of fixture are to be installed at that location.

ezgo headlight wiring diagram wiring diagram name
3 way lighting diagram lovely wiring diagram 3 way light switch
A set of wiring diagrams may be required by the electrical inspection authority to approve membership of the residence to the public electrical supply system.
Wiring diagrams will furthermore include panel schedules for circuit breaker panelboards, and riser diagrams for special facilities such as fire alarm or closed circuit television or extra special services.
You Might Also Like :
[gembloong_related_posts count=3]
ez go wiring diagram another image:

yamaha golf cart wiring diagram inspirational club cart wiring
36 volt ezgo wiring diagram unique starter elegant sw em od
ez go electric golf cart wiring diagram best of 1996 ez go electric

















