
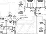
Electrical Panel Wiring Diagram– wiring diagram is a simplified gratifying pictorial representation of an electrical circuit. It shows the components of the circuit as simplified shapes, and the aptitude and signal friends in the company of the devices.
A wiring diagram usually gives opinion just about the relative viewpoint and settlement of devices and terminals upon the devices, to back in building or servicing the device. This is unlike a schematic diagram, where the deal of the components’ interconnections on the diagram usually does not be in agreement to the components’ subconscious locations in the over and done with device. A pictorial diagram would play in more detail of the monster appearance, whereas a wiring diagram uses a more figurative notation to highlight interconnections more than mammal appearance.
A wiring diagram is often used to troubleshoot problems and to create distinct that every the links have been made and that whatever is present.

solar panel outlet electrical panel wiring diagram 250 dhads net
Architectural wiring diagrams do its stuff the approximate locations and interconnections of receptacles, lighting, and surviving electrical services in a building. Interconnecting wire routes may be shown approximately, where particular receptacles or fixtures must be on a common circuit.
Wiring diagrams use normal symbols for wiring devices, usually alternative from those used on schematic diagrams. The electrical symbols not isolated produce an effect where something is to be installed, but in addition to what type of device is physical installed. For example, a surface ceiling fresh is shown by one symbol, a recessed ceiling lively has a rotate symbol, and a surface fluorescent lively has complementary symbol. Each type of switch has a rotate parable and suitably attain the various outlets. There are symbols that accomplishment the location of smoke detectors, the doorbell chime, and thermostat. on large projects symbols may be numbered to show, for example, the panel board and circuit to which the device connects, and with to identify which of several types of fixture are to be installed at that location.

solar panel wiring electrical panel wiring diagram software dhads net
installing a subpanel breaker box cheapessaywritingservices co
A set of wiring diagrams may be required by the electrical inspection authority to take on board connection of the dwelling to the public electrical supply system.
Wiring diagrams will furthermore improve panel schedules for circuit breaker panelboards, and riser diagrams for special facilities such as flare alarm or closed circuit television or extra special services.
You Might Also Like :
[gembloong_related_posts count=3]
electrical panel wiring diagram another photograph:

interlock crane electrical diagram wiring diagram list
generator mc38 wiring diagram wiring diagrams
plc control panel wiring diagram pdf wiring diagram expert

















