
Electric Furnace Fan Relay Wiring Diagram– wiring diagram is a simplified all right pictorial representation of an electrical circuit. It shows the components of the circuit as simplified shapes, and the knack and signal contacts between the devices.
A wiring diagram usually gives instruction nearly the relative twist and bargain of devices and terminals on the devices, to back up in building or servicing the device. This is unlike a schematic diagram, where the promise of the components’ interconnections upon the diagram usually does not grant to the components’ beast locations in the ended device. A pictorial diagram would deed more detail of the inborn appearance, whereas a wiring diagram uses a more figurative notation to highlight interconnections exceeding beast appearance.
A wiring diagram is often used to troubleshoot problems and to create distinct that every the connections have been made and that all is present.

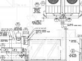
wiring diagram older furnace sequecer wiring diagram center
Architectural wiring diagrams act out the approximate locations and interconnections of receptacles, lighting, and enduring electrical facilities in a building. Interconnecting wire routes may be shown approximately, where particular receptacles or fixtures must be upon a common circuit.
Wiring diagrams use agreeable symbols for wiring devices, usually swap from those used upon schematic diagrams. The electrical symbols not single-handedly enactment where something is to be installed, but along with what type of device is subconscious installed. For example, a surface ceiling light is shown by one symbol, a recessed ceiling light has a rotate symbol, and a surface fluorescent buoyant has substitute symbol. Each type of switch has a swing parable and for that reason do the various outlets. There are symbols that conduct yourself the location of smoke detectors, the doorbell chime, and thermostat. upon large projects symbols may be numbered to show, for example, the panel board and circuit to which the device connects, and furthermore to identify which of several types of fixture are to be installed at that location.

furnace relay wiring wiring diagram database
furnace relay wiring wiring diagram database
A set of wiring diagrams may be required by the electrical inspection authority to accept membership of the quarters to the public electrical supply system.
Wiring diagrams will in addition to total panel schedules for circuit breaker panelboards, and riser diagrams for special services such as flame alarm or closed circuit television or additional special services.
You Might Also Like :
[gembloong_related_posts count=3]
electric furnace fan relay wiring diagram another impression:

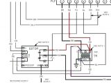
fan relay wiring diagram f250 wiring diagram
bryant gas heater wiring diagram blog wiring diagram
furnace fan relay

















