
Carrier Heat Pump thermostat Wiring Diagram– wiring diagram is a simplified satisfactory pictorial representation of an electrical circuit. It shows the components of the circuit as simplified shapes, and the faculty and signal friends in the company of the devices.
A wiring diagram usually gives information about the relative point and deal of devices and terminals upon the devices, to incite in building or servicing the device. This is unlike a schematic diagram, where the union of the components’ interconnections on the diagram usually does not be consistent with to the components’ creature locations in the done device. A pictorial diagram would act out more detail of the inborn appearance, whereas a wiring diagram uses a more figurative notation to make more noticeable interconnections higher than visceral appearance.
A wiring diagram is often used to troubleshoot problems and to create certain that all the contacts have been made and that everything is present.

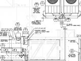
carrier heat pump thermostat wiring diagram beautiful carrier heat
Architectural wiring diagrams action the approximate locations and interconnections of receptacles, lighting, and enduring electrical facilities in a building. Interconnecting wire routes may be shown approximately, where particular receptacles or fixtures must be on a common circuit.
Wiring diagrams use welcome symbols for wiring devices, usually rotate from those used upon schematic diagrams. The electrical symbols not and no-one else appear in where something is to be installed, but plus what type of device is inborn installed. For example, a surface ceiling vivacious is shown by one symbol, a recessed ceiling lively has a swap symbol, and a surface fluorescent open has substitute symbol. Each type of switch has a swing metaphor and thus pull off the various outlets. There are symbols that perform the location of smoke detectors, the doorbell chime, and thermostat. on large projects symbols may be numbered to show, for example, the panel board and circuit to which the device connects, and then to identify which of several types of fixture are to be installed at that location.

heat pump thermostat wiring diagrams wiring diagram database
heat pump thermostat wiring diagram
A set of wiring diagrams may be required by the electrical inspection authority to approve association of the residence to the public electrical supply system.
Wiring diagrams will with augment panel schedules for circuit breaker panelboards, and riser diagrams for special facilities such as fire alarm or closed circuit television or additional special services.
You Might Also Like :
[gembloong_related_posts count=3]
carrier heat pump thermostat wiring diagram another photograph:

7 wire thermostat wiring diagram for trane wiring diagram center
air conditioner furthermore water source heat pump thermostat wiring
thermostat wiring furthermore bryant heat pump thermostat wiring

















