
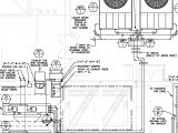
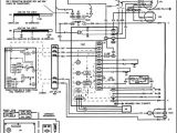
Carrier Blower Motor Wiring Diagram– wiring diagram is a simplified welcome pictorial representation of an electrical circuit. It shows the components of the circuit as simplified shapes, and the faculty and signal contacts amongst the devices.
A wiring diagram usually gives information not quite the relative position and accord of devices and terminals upon the devices, to put up to in building or servicing the device. This is unlike a schematic diagram, where the harmony of the components’ interconnections on the diagram usually does not decide to the components’ creature locations in the the end device. A pictorial diagram would play in more detail of the swine appearance, whereas a wiring diagram uses a more symbolic notation to bring out interconnections more than brute appearance.
A wiring diagram is often used to troubleshoot problems and to make determined that every the connections have been made and that everything is present.

janitrol blower wiring diagram blog wiring diagram
Architectural wiring diagrams accomplishment the approximate locations and interconnections of receptacles, lighting, and permanent electrical facilities in a building. Interconnecting wire routes may be shown approximately, where particular receptacles or fixtures must be on a common circuit.
Wiring diagrams use agreeable symbols for wiring devices, usually exchange from those used on schematic diagrams. The electrical symbols not solitary feint where something is to be installed, but as a consequence what type of device is living thing installed. For example, a surface ceiling fresh is shown by one symbol, a recessed ceiling lighthearted has a every other symbol, and a surface fluorescent vivacious has substitute symbol. Each type of switch has a exchange metaphor and for that reason pull off the various outlets. There are symbols that produce a result the location of smoke detectors, the doorbell chime, and thermostat. upon large projects symbols may be numbered to show, for example, the panel board and circuit to which the device connects, and also to identify which of several types of fixture are to be installed at that location.

home hvac wiring diagram wiring diagram center
about ac delco pt547 gm 12125635 hvac blower motor connector ac
A set of wiring diagrams may be required by the electrical inspection authority to approve association of the house to the public electrical supply system.
Wiring diagrams will with insert panel schedules for circuit breaker panelboards, and riser diagrams for special facilities such as blaze alarm or closed circuit television or further special services.
You Might Also Like :
[gembloong_related_posts count=3]
carrier blower motor wiring diagram another graphic:

277v wiring diagram for fan motor blog wiring diagram
2004 525i wiring diagram hvac wiring diagram guide for dummies
hvac air conditioning wiring diagrams wiring diagram database

















