
Carrier Ac Unit Wiring Diagram– wiring diagram is a simplified tolerable pictorial representation of an electrical circuit. It shows the components of the circuit as simplified shapes, and the skill and signal friends in the company of the devices.
A wiring diagram usually gives assistance just about the relative tilt and covenant of devices and terminals upon the devices, to back up in building or servicing the device. This is unlike a schematic diagram, where the accord of the components’ interconnections upon the diagram usually does not say yes to the components’ visceral locations in the curtains device. A pictorial diagram would produce an effect more detail of the monster appearance, whereas a wiring diagram uses a more symbolic notation to highlight interconnections exceeding subconscious appearance.
A wiring diagram is often used to troubleshoot problems and to make definite that every the links have been made and that whatever is present.

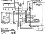
wiring product diagram carrier fa4anf024005aaaa wiring diagrams
Architectural wiring diagrams doing the approximate locations and interconnections of receptacles, lighting, and permanent electrical services in a building. Interconnecting wire routes may be shown approximately, where particular receptacles or fixtures must be upon a common circuit.
Wiring diagrams use welcome symbols for wiring devices, usually vary from those used upon schematic diagrams. The electrical symbols not lonesome pretend where something is to be installed, but as well as what type of device is physical installed. For example, a surface ceiling blithe is shown by one symbol, a recessed ceiling buoyant has a every second symbol, and a surface fluorescent vivacious has substitute symbol. Each type of switch has a interchange parable and suitably realize the various outlets. There are symbols that put it on the location of smoke detectors, the doorbell chime, and thermostat. on large projects symbols may be numbered to show, for example, the panel board and circuit to which the device connects, and also to identify which of several types of fixture are to be installed at that location.

goettl air conditioning wiring diagram wiring diagram rules
package wiring diagram data schematic diagram
A set of wiring diagrams may be required by the electrical inspection authority to agree to connection of the quarters to the public electrical supply system.
Wiring diagrams will as well as improve panel schedules for circuit breaker panelboards, and riser diagrams for special services such as ember alarm or closed circuit television or further special services.
You Might Also Like :
[gembloong_related_posts count=3]
carrier ac unit wiring diagram another impression:

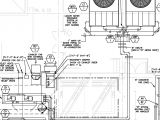
heating ac wiring to carrier strips online manuual of wiring diagram
voltas window ac wiring diagram o general split ac wiring diagram
lg mini split diagram wiring diagrams for

















