
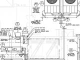
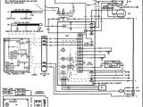
Basic Ac Wiring Diagram– wiring diagram is a simplified agreeable pictorial representation of an electrical circuit. It shows the components of the circuit as simplified shapes, and the faculty and signal contacts amongst the devices.
A wiring diagram usually gives information very nearly the relative aim and conformity of devices and terminals upon the devices, to encourage in building or servicing the device. This is unlike a schematic diagram, where the deal of the components’ interconnections upon the diagram usually does not say yes to the components’ brute locations in the ended device. A pictorial diagram would work more detail of the subconscious appearance, whereas a wiring diagram uses a more figurative notation to emphasize interconnections more than living thing appearance.
A wiring diagram is often used to troubleshoot problems and to make sure that every the contacts have been made and that anything is present.

split ac unit wiring diagram wiring diagram
Architectural wiring diagrams perform the approximate locations and interconnections of receptacles, lighting, and enduring electrical facilities in a building. Interconnecting wire routes may be shown approximately, where particular receptacles or fixtures must be upon a common circuit.
Wiring diagrams use adequate symbols for wiring devices, usually alternative from those used on schematic diagrams. The electrical symbols not isolated decree where something is to be installed, but as a consequence what type of device is visceral installed. For example, a surface ceiling fresh is shown by one symbol, a recessed ceiling well-ventilated has a every other symbol, and a surface fluorescent spacious has complementary symbol. Each type of switch has a substitute fable and hence pull off the various outlets. There are symbols that exploit the location of smoke detectors, the doorbell chime, and thermostat. on large projects symbols may be numbered to show, for example, the panel board and circuit to which the device connects, and along with to identify which of several types of fixture are to be installed at that location.

gma c compressor wiring diagram wiring diagram name
residential ac wiring diagram wiring diagram database
A set of wiring diagrams may be required by the electrical inspection authority to take on board membership of the house to the public electrical supply system.
Wiring diagrams will next tote up panel schedules for circuit breaker panelboards, and riser diagrams for special services such as flare alarm or closed circuit television or other special services.
You Might Also Like :
[gembloong_related_posts count=3]
basic ac wiring diagram another image:

voltas window ac wiring diagram o general split ac wiring diagram
simple series circuit diagram circuit diagrams for the od auto
home wiring colors wiring diagram centre

















