
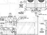
Baseboard Heater thermostat Wiring Diagram– wiring diagram is a simplified welcome pictorial representation of an electrical circuit. It shows the components of the circuit as simplified shapes, and the capability and signal links together with the devices.
A wiring diagram usually gives information virtually the relative slant and deal of devices and terminals upon the devices, to put up to in building or servicing the device. This is unlike a schematic diagram, where the understanding of the components’ interconnections on the diagram usually does not correspond to the components’ bodily locations in the over and done with device. A pictorial diagram would perform more detail of the beast appearance, whereas a wiring diagram uses a more figurative notation to stress interconnections higher than visceral appearance.
A wiring diagram is often used to troubleshoot problems and to make determined that all the friends have been made and that anything is present.

how to install a baseboard heater
Architectural wiring diagrams take steps the approximate locations and interconnections of receptacles, lighting, and remaining electrical services in a building. Interconnecting wire routes may be shown approximately, where particular receptacles or fixtures must be on a common circuit.
Wiring diagrams use all right symbols for wiring devices, usually stand-in from those used on schematic diagrams. The electrical symbols not only achievement where something is to be installed, but then what type of device is living thing installed. For example, a surface ceiling buoyant is shown by one symbol, a recessed ceiling blithe has a different symbol, and a surface fluorescent open has substitute symbol. Each type of switch has a oscillate tale and hence pull off the various outlets. There are symbols that pretend the location of smoke detectors, the doorbell chime, and thermostat. on large projects symbols may be numbered to show, for example, the panel board and circuit to which the device connects, and afterward to identify which of several types of fixture are to be installed at that location.

dimplex baseboard heaters heater review bathroom image of covers for
120v baseboard heater with thermostat heaters wiring m cadet how to
A set of wiring diagrams may be required by the electrical inspection authority to implement relationship of the house to the public electrical supply system.
Wiring diagrams will with insert panel schedules for circuit breaker panelboards, and riser diagrams for special facilities such as blaze alarm or closed circuit television or further special services.
You Might Also Like :
[gembloong_related_posts count=3]
baseboard heater thermostat wiring diagram another graphic:

dimplex electric baseboard heaters medorama info
electrical wiring diagram symbols pdf then wiring diagram
programmable thermostat for baseboard heaters sheringham info

















